6/11
Paylaş
Resmi Orjinal Boyutunda Göster
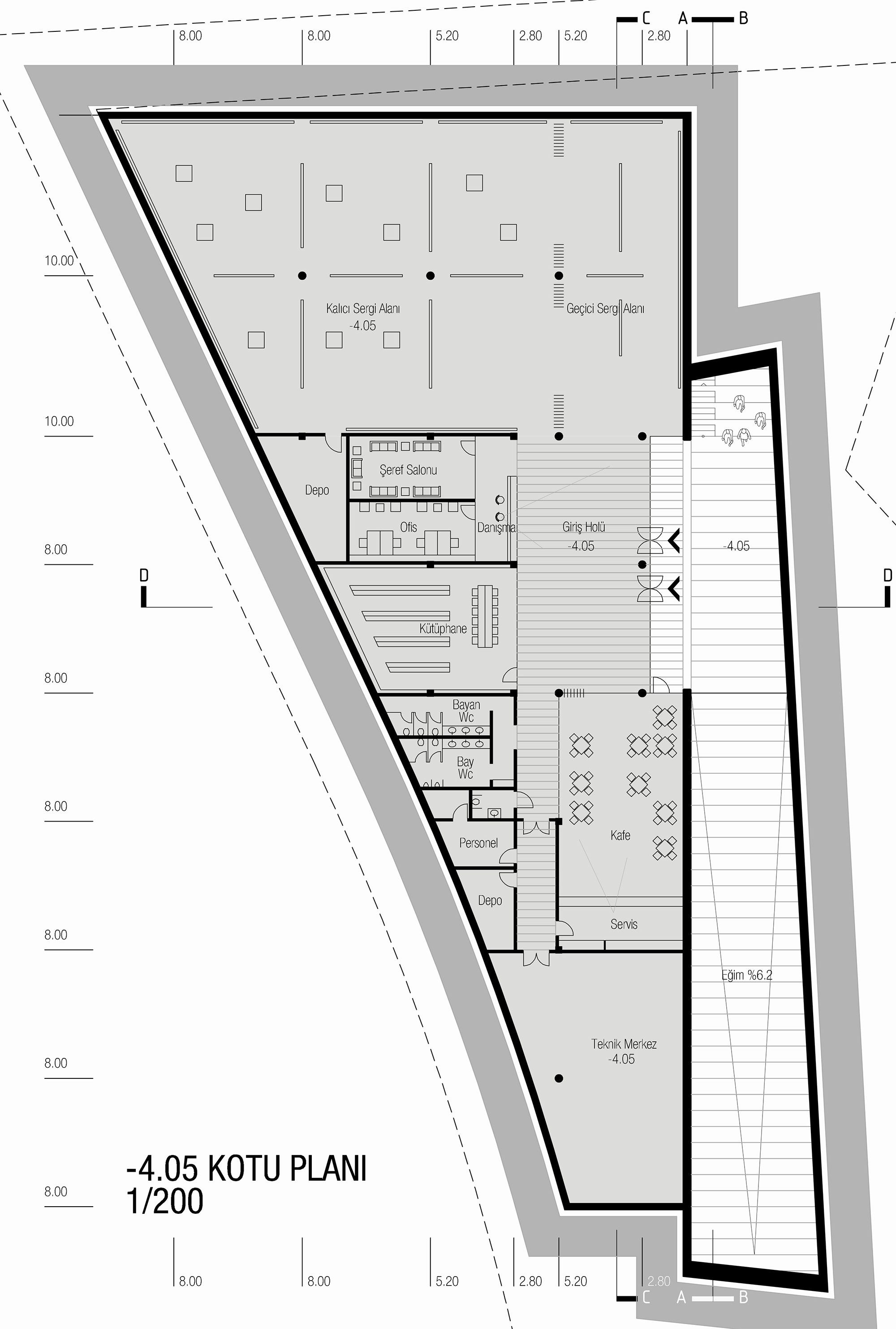
Eşdeğer Mansiyon, Kore Savaşı Anma Alanı ve Ziyaretçi Merkezi Mimari Proje Yarışması
Proje Yeri: Kırklareli
Proje Tipi: Anıt / Simge Yapı, Sergi Mekanı / Galeri, Peyzaj
Proje Tipi Grubu: Eşdeğer Mansiyon
Tasarım Ekibi: Erdal Sorgucu, Nihat Eyce, Aslı Özbek, Esra Ekincioğlu
Danışman: Yüksel Konkan