26/29
Paylaş
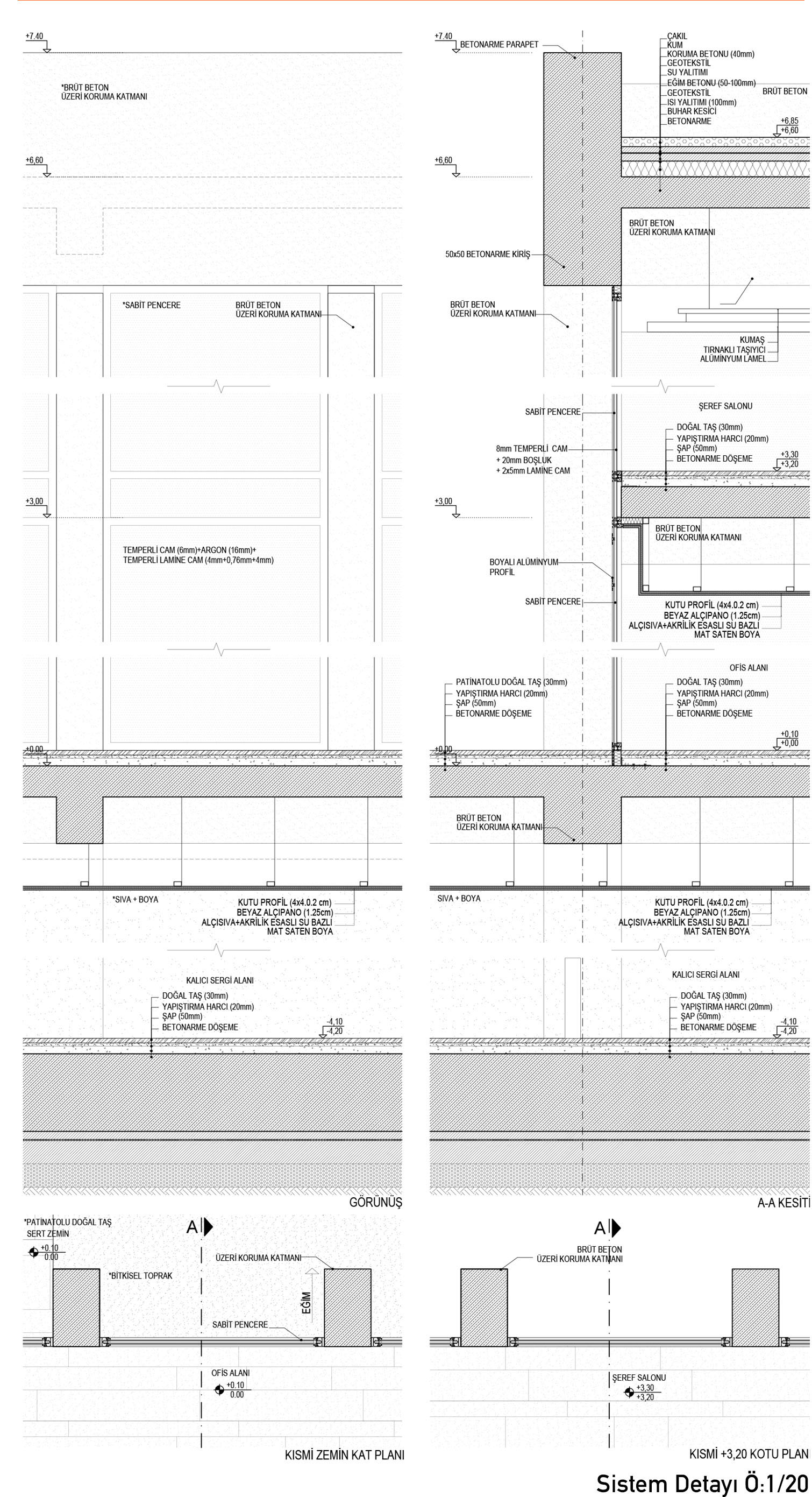
Resmi Orjinal Boyutunda Göster
Katılımcı (addoffice), Kore Savaşı Anma Alanı ve Ziyaretçi Merkezi Mimari Proje Yarışması
Proje Yeri: Kırklareli
Proje Ofisi: addoffice
Proje Tipi: Peyzaj, Anıt / Simge Yapı, Sergi Mekanı / Galeri
Proje Tipi Grubu: Katılımcı
Tasarım Ekibi: Ece Doğan, Çağlar Barış, İbrahim Tolga Han, Tuğçe Caner, Mine Kaya
Danışman: Cem Yılmaz
Yardımcı: Fatma Gökçen Kara, Nurdan Akman, Elif Tuğçe Demir