22/36
Paylaş
Resmi Orjinal Boyutunda Göster
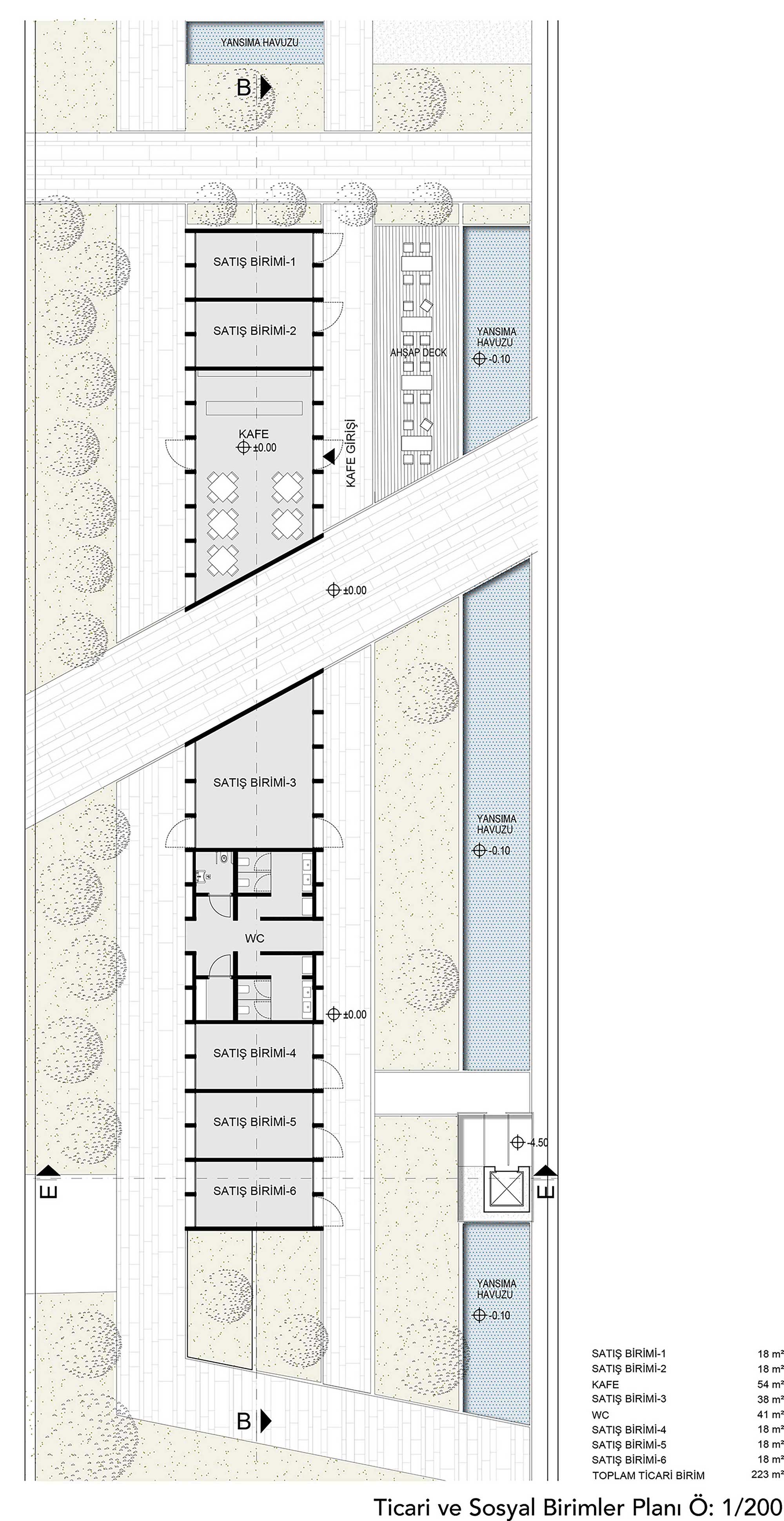
1. Ödül (addoffice), Akhisar Eski Belediye Meydanı ve Yakın Çevresi Ulusal Mimarlık ve Kentsel Tasarım Fikir Yarışması
Proje Yeri: Manisa
Proje Ofisi: addoffice
Proje Tipi: Kentsel Tasarım, Meydan
Proje Tipi Grubu: 1. Ödül
Tasarım Ekibi: İbrahim Tolga Han, Çağlar Barış, Ece Doğan, Fatma Gökçen Kara, Edis Bengi Erciyes, Sevcan Uçlar
Danışman: Ozan Önder Özener
Yardımcı: Yunus Salün