27/28
Paylaş
Resmi Orjinal Boyutunda Göster
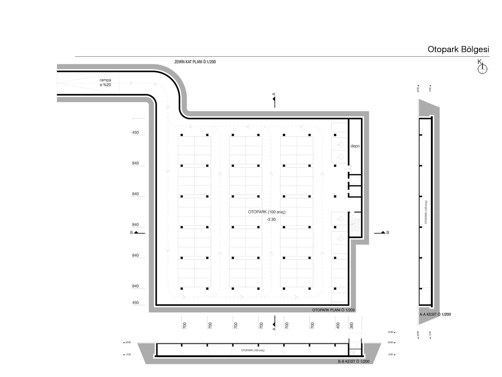
3. Mansiyon, Akhisar Eski Belediye Meydanı ve Yakın Çevresi Ulusal Mimarlık ve Kentsel Tasarım Fikir Yarışması
Proje Yeri: Manisa
Proje Tipi: Meydan, Kentsel Tasarım
Proje Tipi Grubu: 3. Mansiyon
Tasarım Ekibi: Cemil Hamdi Okumuş, Ezel Yağmur Çebi Okumuş, Paşa Kaya, Ege Kaska Akit, Mert Akit
Danışman: Emrah Bal, İpek Deniz Alpdoğan
Yardımcı: Burcu Balaban, Emre Kul