48/51
Paylaş
Resmi Orjinal Boyutunda Göster
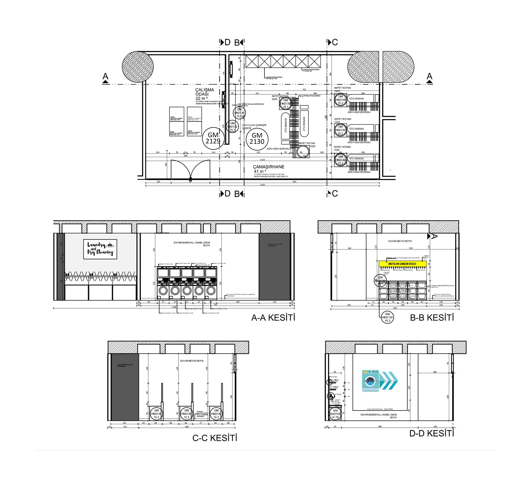
Yeni Nesil Öğrenci Yurtları
Proje Yeri: İstanbul, Esenyurt
Proje Ofisi: Renda Helin Design
Proje Tipi: Yurt / Konukevi
Proje Tipi Grubu: Konaklama
Tasarım Ekibi: Renda Helin Çilalioğlu Çizer
İşveren: Torunlar GYO
Yardımcı: Çağrı Çelik, Hale Betül Güleç, Amine Doğan, Serhat Altınbilek, Can Balkan, Kadriye Gözde Acar, Gözde Demir, Merih Erdoğan, Dilek Akyol, Hande Yıldız Dottorini, Banu Baki, Gökçe Çiçek Çetingil
Ana Yüklenici: Torunlar GYO
Proje Yöneticisi: Nurten Gülşan
Aydınlatma Projesi: Torunlar GYO, Bahar Aydınlatma
Mekanik Projesi: Tanrıöver Mühendislik
Proje Başlangıç Yılı: 2017
Proje Bitiş Yılı: 2018
İnşaat Başlangıç Yılı: 2018
İnşaat Bitiş Yılı: 2018
Toplam İnşaat Alanı: 25,779 m2