27/31
Paylaş
Resmi Orjinal Boyutunda Göster
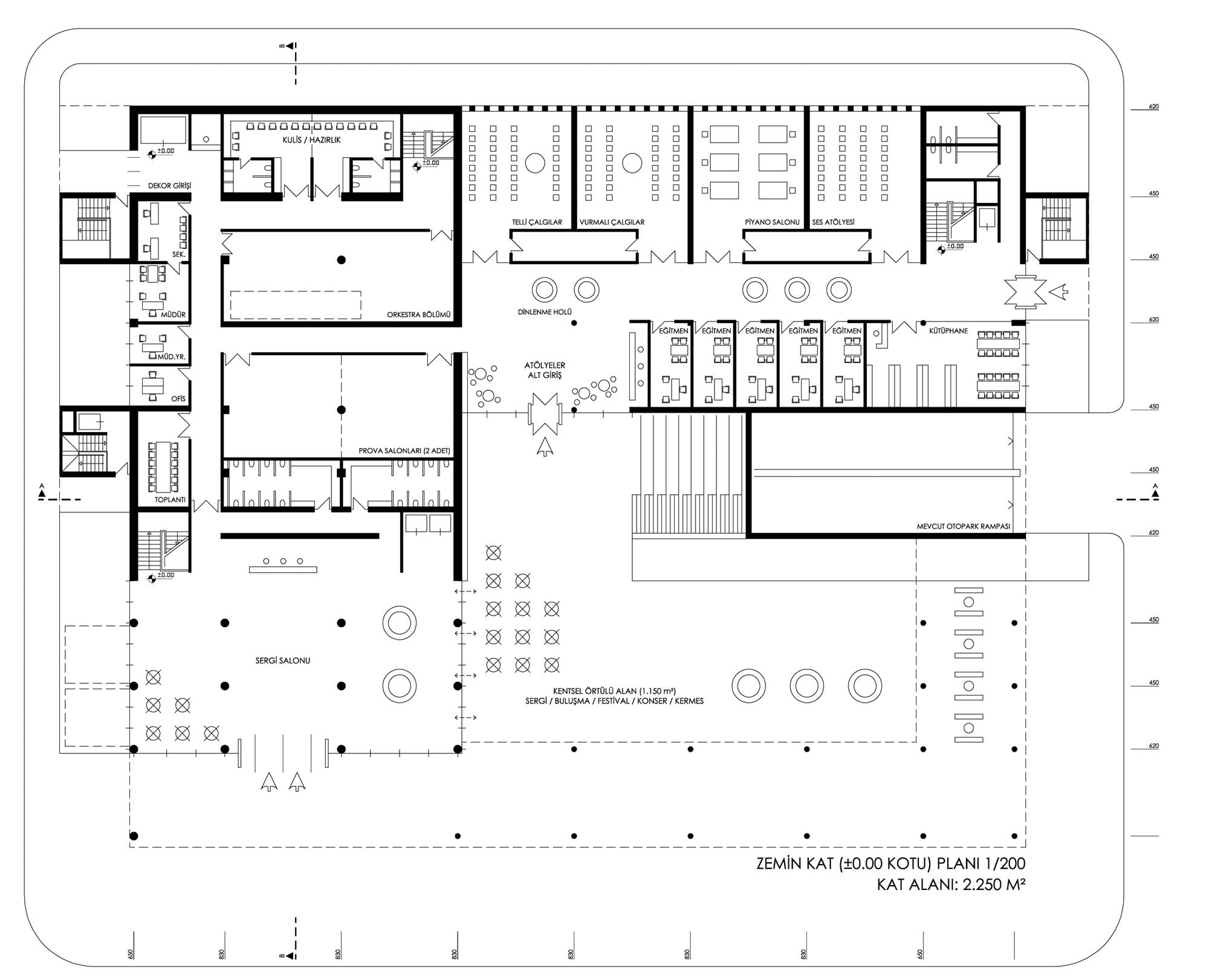
Şehitkamil Belediyesi Sanat Merkezi
Proje Yeri: Gaziantep, Şehitkamil
Proje Ofisi: Kota Mimarlık
Proje Tipi: Kültür Merkezi
Proje Tipi Grubu: Kültür
Tasarım Ekibi: Orkun Özüer, Kerem Çınar, Görkem Rabia Kanat
İşveren: Gaziantep Şehitkamil Belediyesi
Ana Yüklenici: İbrahim Apa İnşaat
Statik Projesi: Güven Özer
Mekanik Projesi: Serkan Kayaş
Elektrik Projesi: Ramazan Zeytün
Fotoğraf: Alp Eren
Şantiye Yöneticisi: Bekir Sami Özçörekçi
Proje Başlangıç Yılı: 2016
Proje Bitiş Yılı: 2017
İnşaat Başlangıç Yılı: 2017
İnşaat Bitiş Yılı: 2018
Arsa Alanı: 4,551 m2
Toplam İnşaat Alanı: 5,000 m²