18/20
Paylaş
Resmi Orjinal Boyutunda Göster
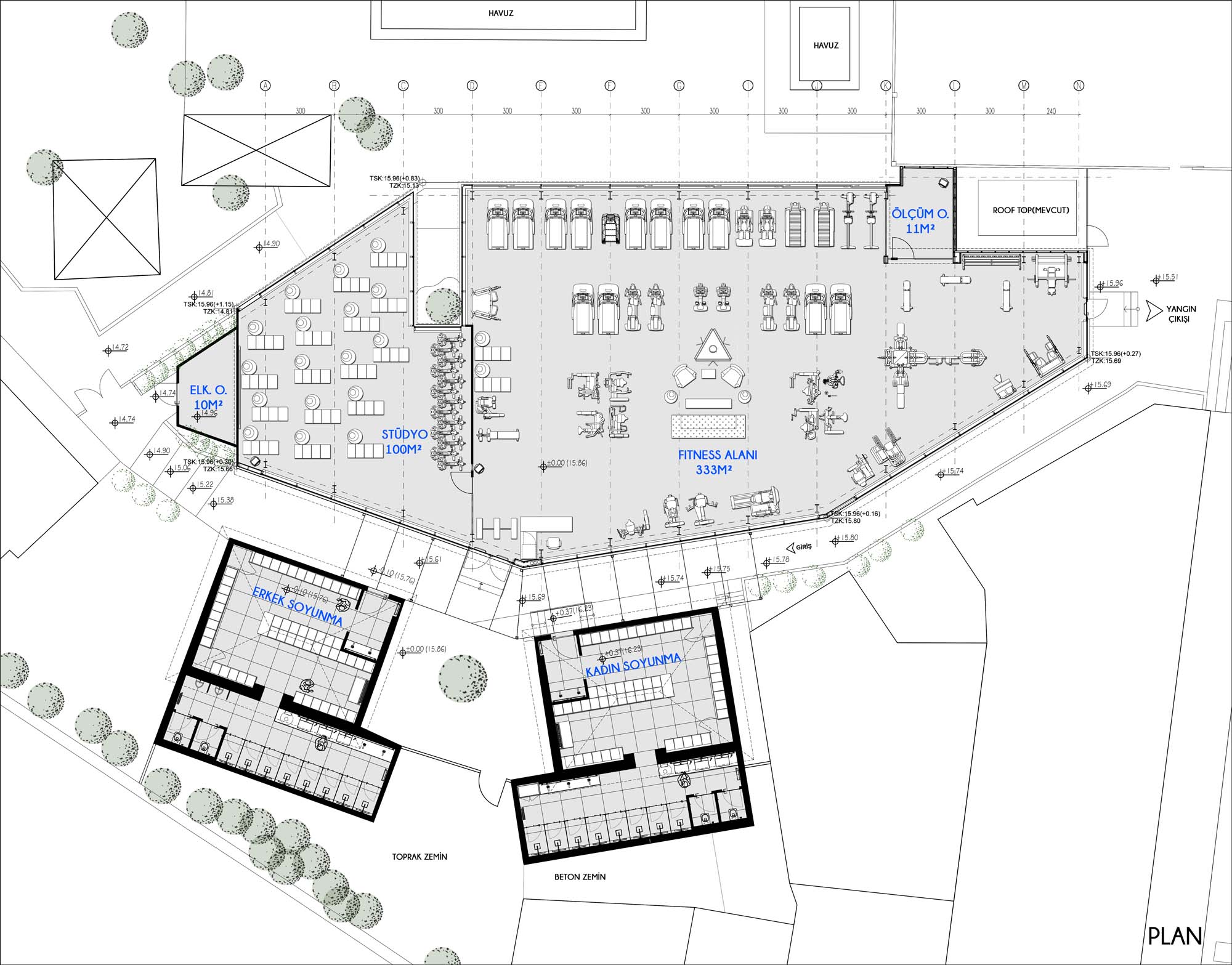
Dalyan Club Fitness Merkezi
Proje Yeri: Kadıköy, İstanbul
Proje Ofisi: AIDA Mimarlık
Proje Tipi: Diğer Spor Yapıları
Proje Tipi Grubu: Rekreasyon / Spor
Tasarım Ekibi: Korkut Yıldırım
İşveren: Dalyan Club
Yardımcı: Hilal Cumhur, Yağmur Göksüzoğlu, Berkay Oskay
Ana Yüklenici: Torunlar Yapı
Statik Projesi: Birol Doyranlı
Mekanik Projesi: Omnia Mühendislik
Elektrik Projesi: Trifaz mühendislik
Fotoğraf: Sahir Uğur Eren
Mimari Mesleki Kontrollük: Korkut Yıldırım
Proje Başlangıç Yılı: 2017
Proje Bitiş Yılı: 2017
İnşaat Başlangıç Yılı: 2018
İnşaat Bitiş Yılı: 2018
Toplam İnşaat Alanı: 70 m2, 705 m2