8/9
Paylaş
Resmi Orjinal Boyutunda Göster
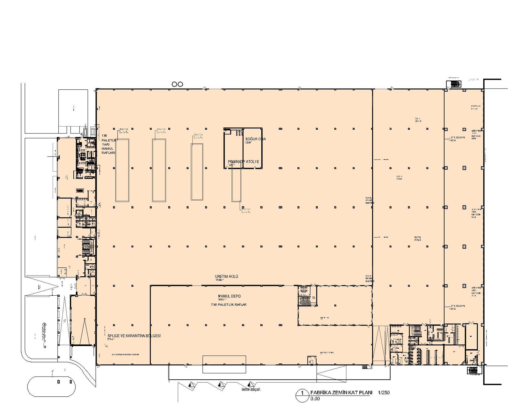
Rekor Kauçuk Eskişehir Fabrikası ve Ofis Binası
Proje Yeri: Eskişehir, Odunpazarı
Proje Ofisi: Akyürek Elmas Mimarlık
Proje Tipi: Fabrika
Proje Tipi Grubu: Endüstriyel
Tasarım Ekibi: Can Elmas, Çağla Akyürek
İşveren: Rekor Kauçuk
Yardımcı: Canana Baş, Tuğçe Köksal
Ana Yüklenici: Dea Yapı
Proje Yöneticisi: Can Elmas
Statik Projesi: Yavuz Proje
Mekanik Projesi: Erce Mekanik
Elektrik Projesi: Yurtsever Elektrik
Tesisat Projesi: Erce Mekanik
Çelik Projesi: Yavuz Proje
Maket: Atölye K
Fotoğraf: Can Elmas
Mimari Mesleki Kontrollük: Can Elmas
Şantiye Yöneticisi: DEA Hayrettin Kahraman
Proje Başlangıç Yılı: 2014
Proje Bitiş Yılı: 2015
İnşaat Başlangıç Yılı: 2016
İnşaat Bitiş Yılı: 2018
Arsa Alanı: 74,993 m²
Toplam İnşaat Alanı: 35,733 m²