17/21
Paylaş
Resmi Orjinal Boyutunda Göster
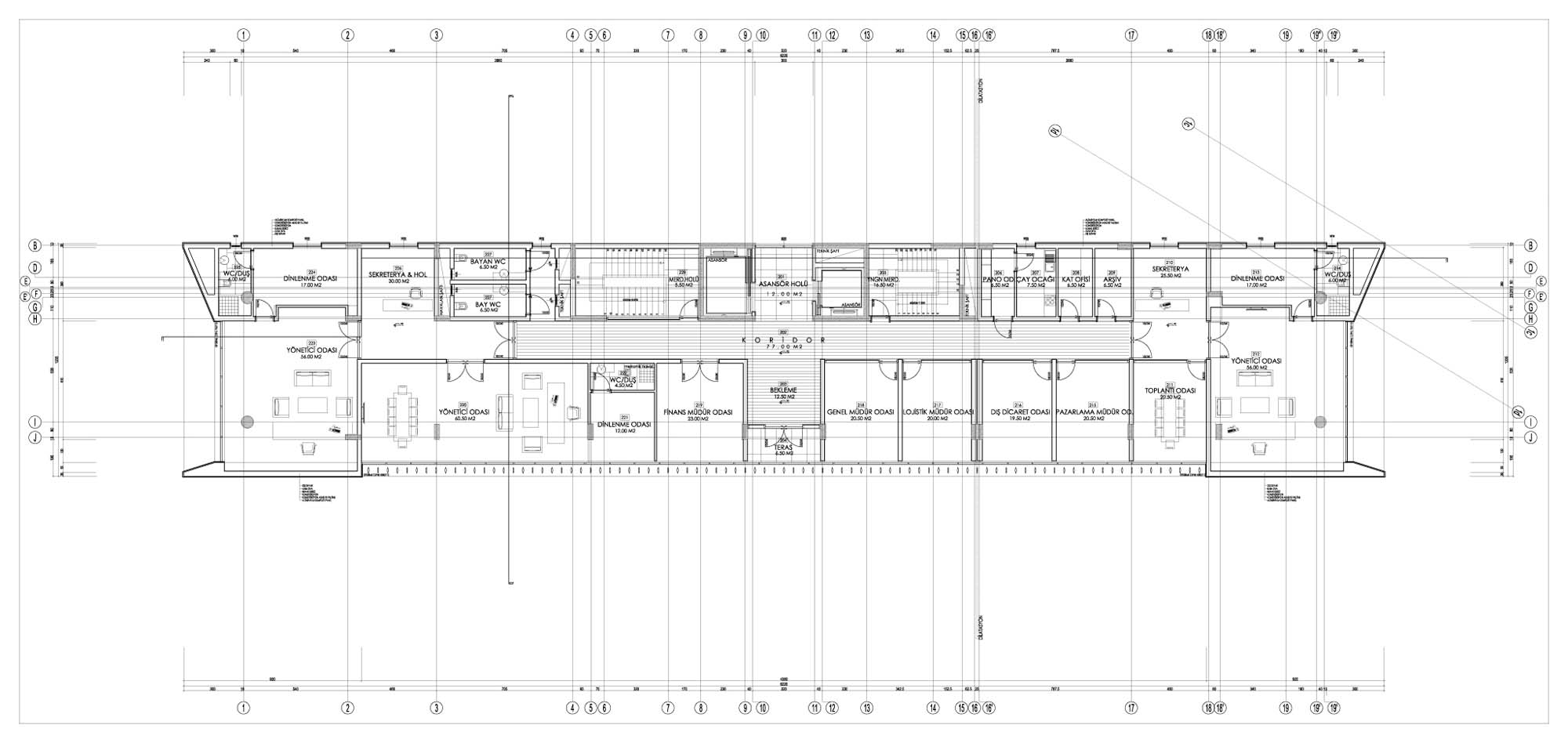
Camsaş Genel Müdürlük Binası
Project Location: Döşemealtı, Antalya
Project Office: Altındal Mimarlık
Project Type: Offices
Proje Tipi Grubu: Endüstriyel
Tasarım Ekibi: Şevket Altındal
Employer: CAMSAŞ
Ana Yüklenici: CAMSAŞ
Interior Architecture: Kemal Serkan Tokis, KST Mimarlık
Construction Drawings: Altındal Mimarlık
Structural Project: Akın Akıncı, Akıncı Mühendislik
Mechanical Project: Taner Tazegül, TSO Mühendislik
Electrical Project: Mithat Büyükdurak
Plumbing Project: Taner Tazegül, TSO Mühendislik
Çelik Projesi: Akın Akıncı, Akıncı Mühendislik
Project Start Date: 2016
Project End Date: 2016
Construction Start Date: 2017
Construction End Date: 2018
Total Construction Area: 3,110 m2