16/26
Paylaş
Resmi Orjinal Boyutunda Göster
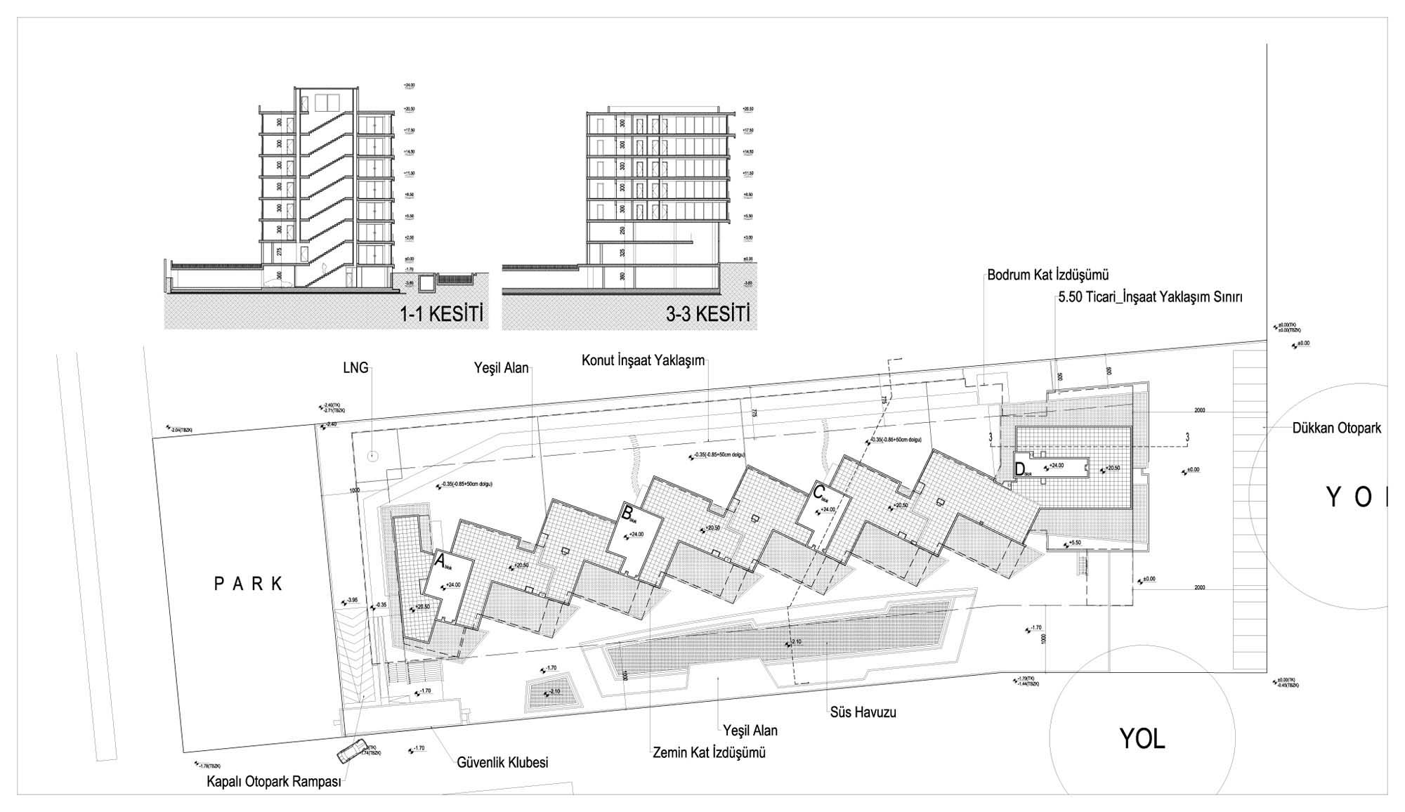
Maki Port
Proje Yeri: Konyaaltı, Antalya
Proje Ofisi: Altındal Mimarlık, AC Bıçaklı Mimarlık
Proje Tipi: Konut Sitesi / Grubu
Proje Tipi Grubu: Konut
Tasarım Ekibi: Şevket Altındal, Ahmet Bıçaklı
İşveren: Önderler İnşaat
Yardımcı: Can Cahit Bıçaklı, Erhan Yılmaz
Ana Yüklenici: Önderler İnşaat
Peyzaj Mimarlığı: Aslı Ergen, Aslı Ergen Landscape
İç Mekan Projesi: Zeynep Esengil Ceylan, Rem Mimarlık
Uygulama Projesi: Altındal Mimarlık
Statik Projesi: Akın Akıncı, Akıncı Mühendislik
Mekanik Projesi: Kemal Açıkalın, Açıkalın Mühendislik
Elektrik Projesi: Seyit Çağrı Yıldırım, SYT Mühendislik
Tesisat Projesi: Kemal Açıkalın, Açıkalın Mühendislik
Çelik Projesi: Akın Akıncı, Akıncı Mühendislik
Proje Başlangıç Yılı: 2017
Proje Bitiş Yılı: 2017
İnşaat Başlangıç Yılı: 2017
İnşaat Bitiş Yılı: 2018
Arsa Alanı: 6,560 m2
Toplam İnşaat Alanı: 15,851 m2