32/41
Paylaş
Resmi Orjinal Boyutunda Göster
Arıkoğlu Arkitekt
Proje Yeri: Seyhan, Adana
Proje Ofisi: Arıkoğlu Arkitekt
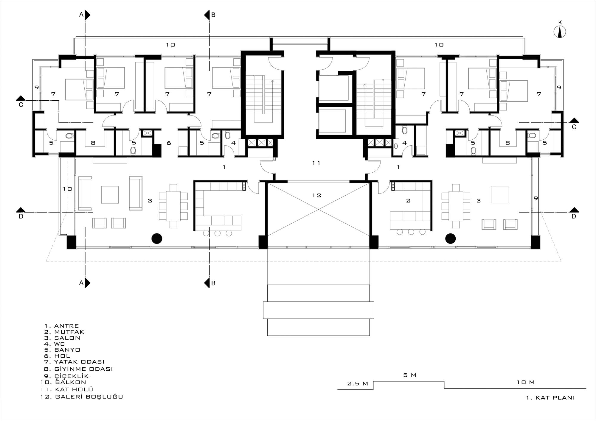
Proje Tipi: Apartman
Proje Tipi Grubu: Konut
Tasarım Ekibi: Şahin Arıkoğlu, Kaya Arıkoğlu
İşveren: Ali Keskin, Emrah Keskin
Ana Yüklenici: Keskin İvme İnşaat
Peyzaj Mimarlığı: Çağla Vuran
İç Mekan Projesi: Ünsal Ünal
Konsept Tasarımı: Kaya Arıkoğlu
Uygulama Projesi: Keskin İvme İnşaat
Cephe Tasarımı: Şahin Arıkoğlu
Grafik Tasarım: Bilal Kocabıyık
Statik Projesi: Emrah Keskin
Mekanik Projesi: Fatih Çakallı
Elektrik Projesi: Beytem Mühendislik
Tesisat Projesi: Fatih Çakallı
Fotoğraf: Şahin Arıkoğlu
Mimari Mesleki Kontrollük: Kaya Arıkoğlu
Şantiye Yöneticisi: Ali Keskin
Proje Başlangıç Yılı: 2015
Proje Bitiş Yılı: 2016
İnşaat Başlangıç Yılı: 2016
İnşaat Bitiş Yılı: 2018
Toplam İnşaat Alanı: 13,870 m2