12/12
Paylaş
Resmi Orjinal Boyutunda Göster
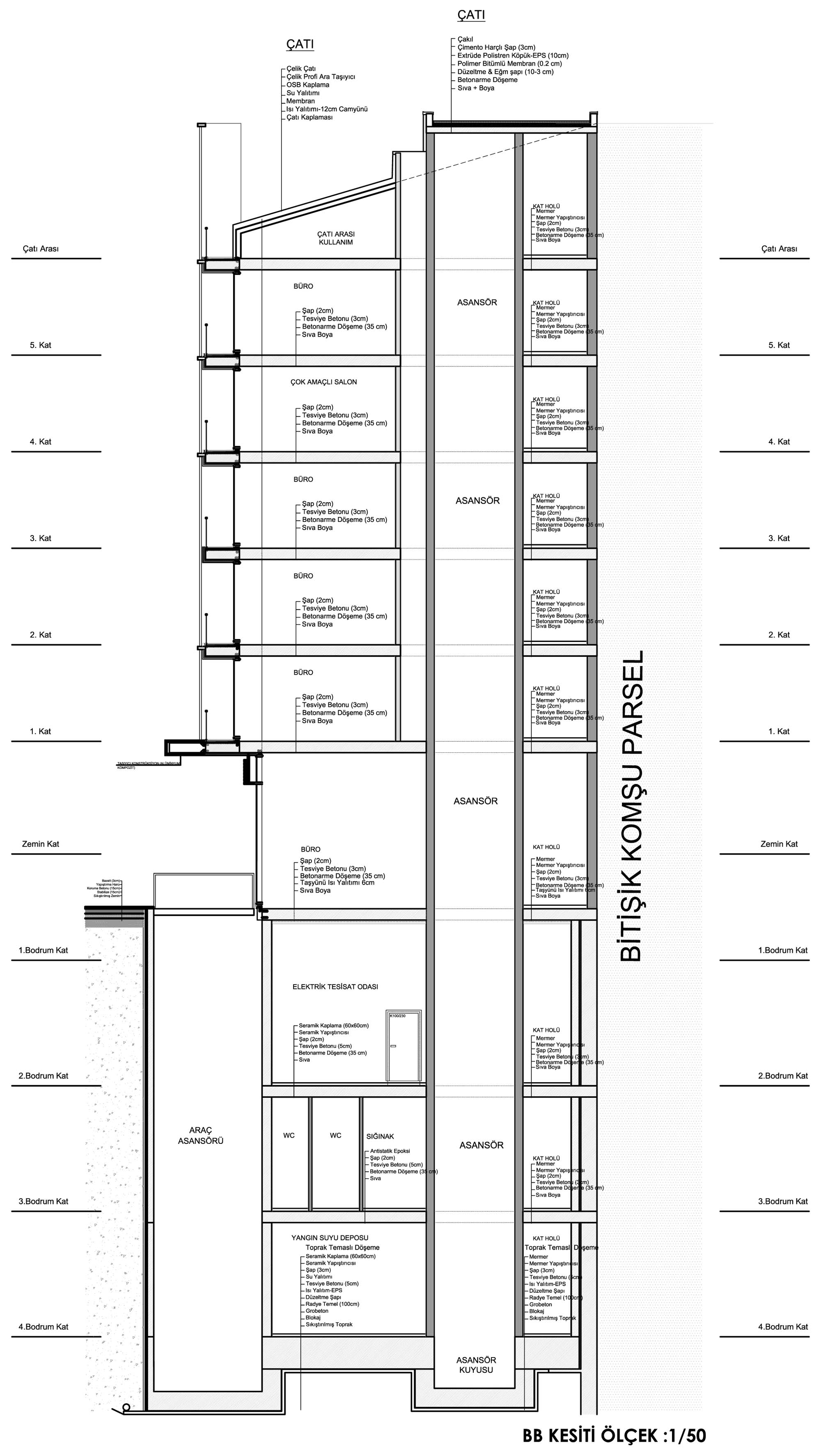
Türk Eğitim Vakfı Ofis Binası
Proje Yeri: Çankaya, Ankara
Proje Ofisi: AS Architects, Gökhan Aksoy Mimarlık
Proje Tipi: Ofis
Proje Tipi Grubu: Eğitim
Tasarım Ekibi: Ayşin Sevgi Karakurt, Gökhan Aksoy
İşveren: Türk Eğitim Vakfı (TEV)
Yardımcı: Duygu Hevesli, Bahar Özbek
Ana Yüklenici: Tek Mimarlık
Peyzaj Mimarlığı: Çevre ve Peyzaj
Proje Yöneticisi: Kerime Vural
Statik Projesi: AKY Mühendislik
Mekanik Projesi: Merkezi Isı Sistemleri
Elektrik Projesi: K Mühendislik
Tesisat Projesi: Merkezi Isı Sistemleri
Çelik Projesi: AKY Mühendislik
Fotoğraf: Fethi Mağara
Proje Başlangıç Yılı: 2017
Proje Bitiş Yılı: 2017
İnşaat Başlangıç Yılı: 2017
İnşaat Bitiş Yılı: 2018
Arsa Alanı: 543 m²
Toplam İnşaat Alanı: 3,086 m²