37/45
Paylaş
Resmi Orjinal Boyutunda Göster
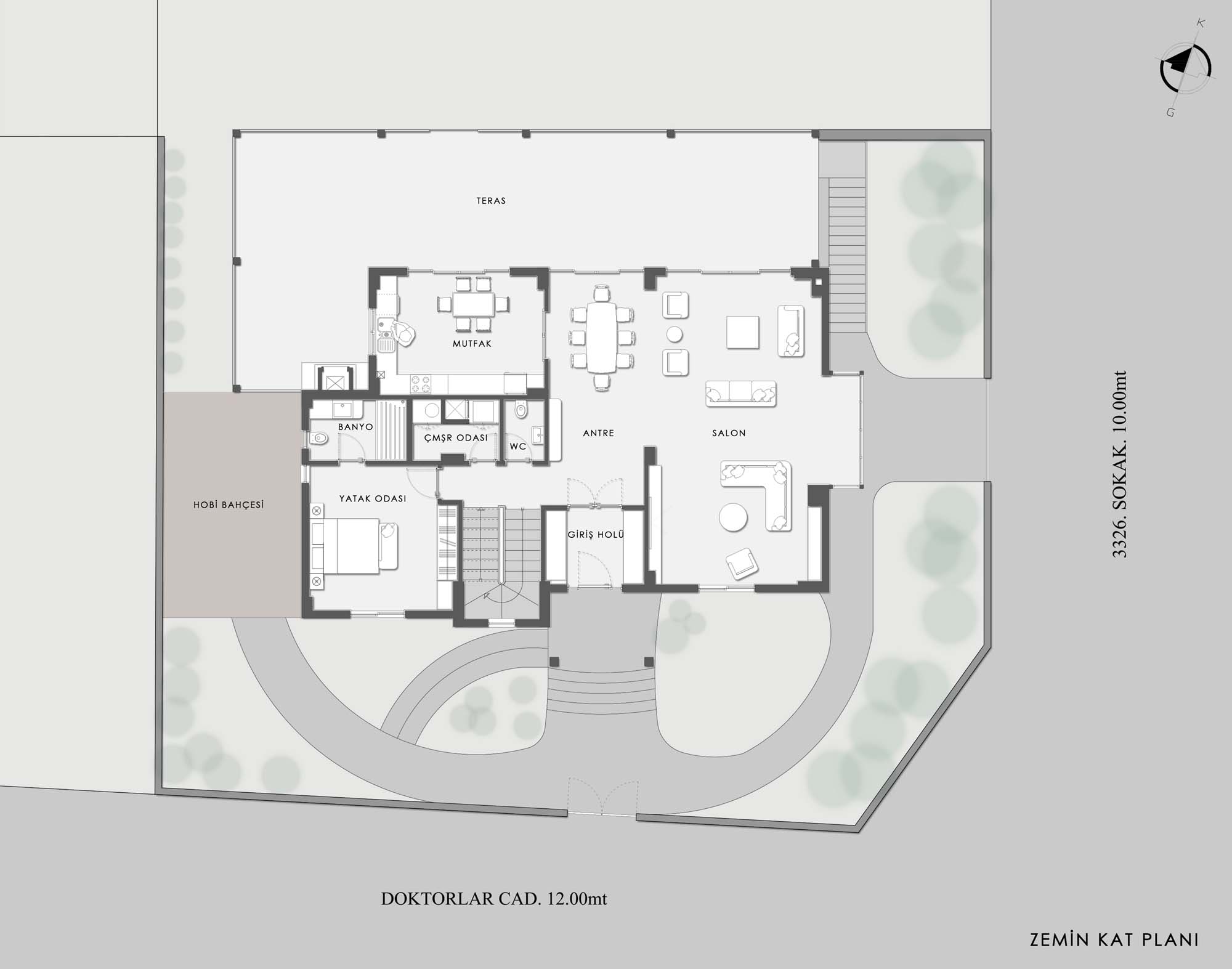
YN Altuniç Villa
Project Location: Samsun
Project Office: Başak Mimarlık
Project Type: Single House
Proje Tipi Grubu: Konut
Tasarım Ekibi: Cengiz Şentürk, Büşra Karatay
Employer: Yusuf Altuniç, Nilgün Altuniç
Yardımcı: Hakan Düzen, Betül Eroğlu
Ana Yüklenici: Yusuf Altuniç, Nilgün Altuniç
Structural Project: Seçkin Yön
Mechanical Project: Mehmet Mutlu
Project Start Date: 2016
Project End Date: 2017
Construction Start Date: 2017
Construction End Date: 2018
Building Plot Area: 467 m²
Total Construction Area: 433 m²