13/25
Paylaş
Resmi Orjinal Boyutunda Göster
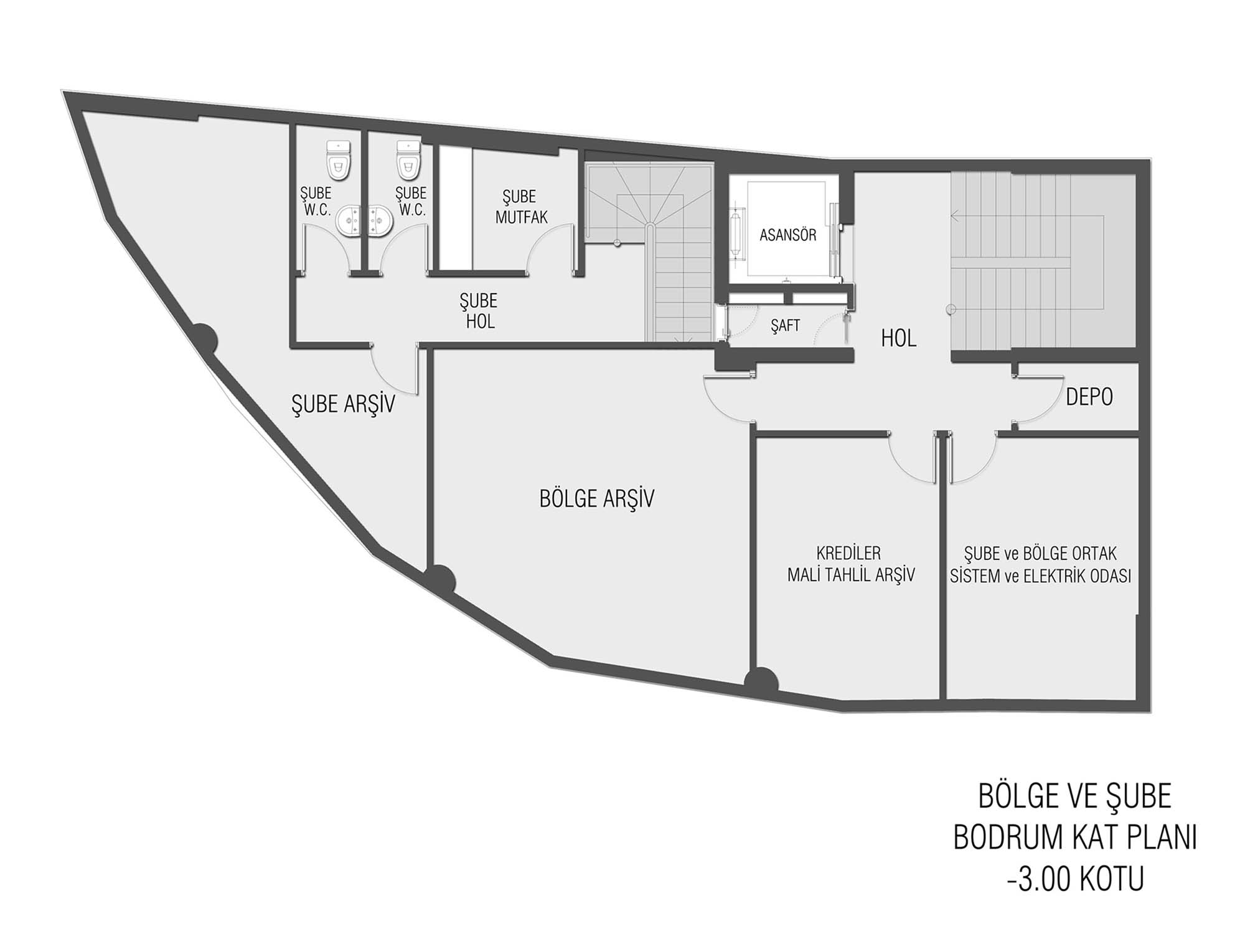
Denizbank Samsun Bölge Müdürlüğü
Proje Yeri: Samsun, Atakum
Proje Ofisi: Başak Mimarlık
Proje Tipi: Ofis
Proje Tipi Grubu: Ticari
İşveren: Kemal Tarım
Yardımcı: Hakan Düzen, Betül Eroğlu
Ana Yüklenici: Kemal Tarım
Statik Projesi: Seçkin Yön
Mekanik Projesi: Mehmet Mutlu
Tesisat Projesi: Cengiz Şentürk, Büşra Karatay, Ceren Şentürk
Proje Başlangıç Yılı: 2016
Proje Bitiş Yılı: 2017
İnşaat Başlangıç Yılı: 2017
İnşaat Bitiş Yılı: 2018
Arsa Alanı: 380 m²
Toplam İnşaat Alanı: 1410 m2