21/21
Paylaş
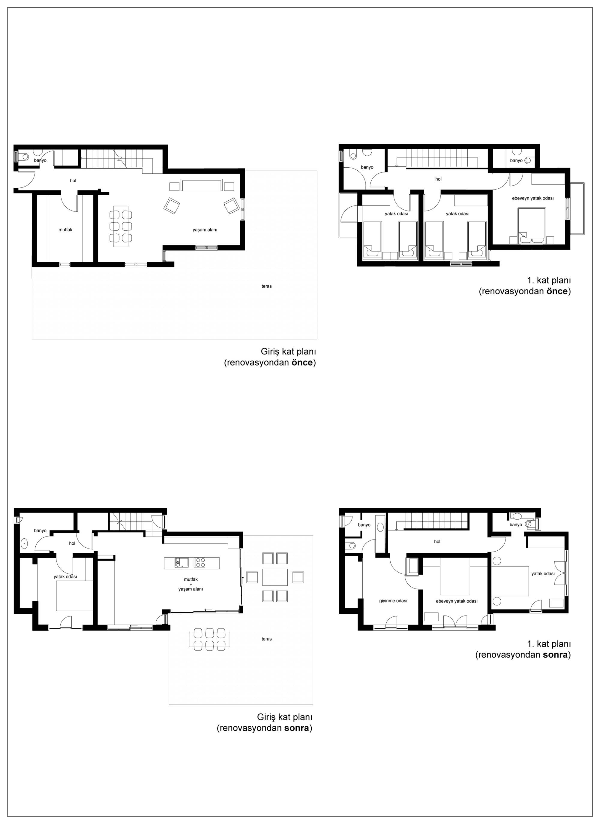
Resmi Orjinal Boyutunda Göster
Koz Çeşme Evi
Proje Yeri: Çeşme, İzmir
Proje Tipi: Tek Ev / Villa
Proje Tipi Grubu: Konut
Tasarım Ekibi: Belgin Koz
İşveren: Belgin Koz, Münif Koz
Yardımcı: Simla Yüzgeç, Çiğdem Yılman
Ana Yüklenici: Toler İnşaat
Fotoğraf: Dilara Koz
Proje Başlangıç Yılı: 2016
Proje Bitiş Yılı: 2018
İnşaat Başlangıç Yılı: 2017
İnşaat Bitiş Yılı: 2018
Arsa Alanı: 439 m2
Toplam İnşaat Alanı: 165 m²