23/27
Paylaş
Resmi Orjinal Boyutunda Göster
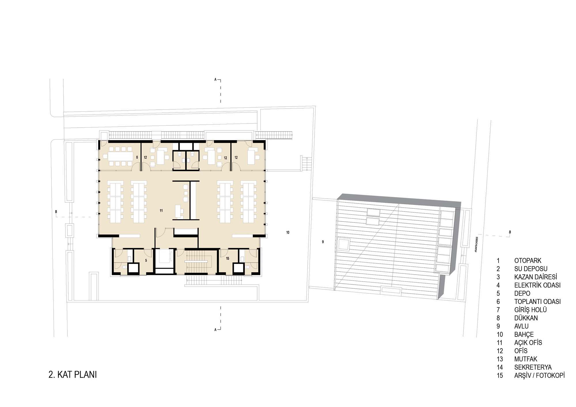
Atakule GYO Ofis Yapısı
Proje Yeri: Çankaya, Ankara
Proje Ofisi: Bütüner Mimarlık
Proje Tipi: Ofis
Proje Tipi Grubu: Ticari
Tasarım Ekibi: Hüseyin Bütüner
İşveren: Atakule GYO
Yardımcı: Işıl Sencar Ertosun, Cem Korkmaz, Burcu Bilgenoğlu Umur , Özlem Özdener Özkan, Özge Karaman, Alp Diker, Cenk Çeşmeli
Peyzaj Mimarlığı: Bütüner Mimarlık, Tülin Göçer Munzur
Proje Yöneticisi: Deniz Özçelik
Statik Projesi: Kınacı Mühendislik, Mehmet Zafer Kınacı
Mekanik Projesi: CG Mühendislik, Celal Eğri
Elektrik Projesi: Özay Mühendislik, Kemal Aykaç
Tesisat Projesi: CG Mühendislik, Celal Eğri
Yangın Tahliye Projesi: ORGA Mühendislik
Yangın Güvenlik Danışmanı: ORGA Mühendislik
Fotoğraf: KoKa Photography, Koray Kalay
Proje Başlangıç Yılı: 2015
Proje Bitiş Yılı: 2016
İnşaat Başlangıç Yılı: 2016
İnşaat Bitiş Yılı: 2018
Arsa Alanı: 765 m2
Toplam İnşaat Alanı: 3,540 m2