9/9
Paylaş
Resmi Orjinal Boyutunda Göster
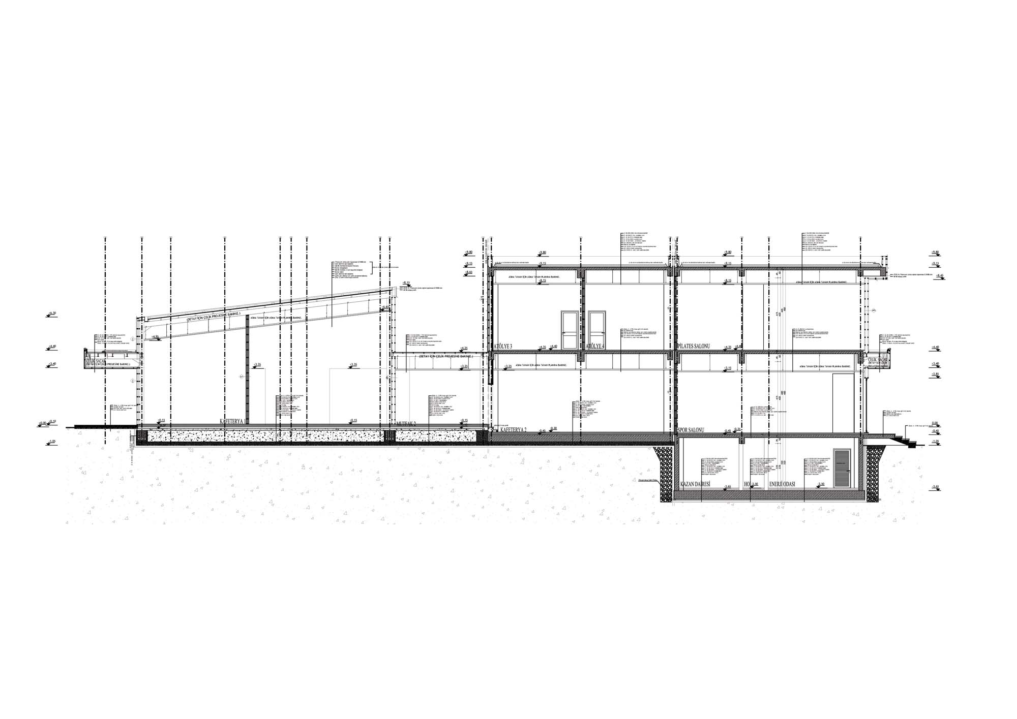
Denizli Sosyal Yaşam ve Kültür Merkezi
Proje Yeri: Denizli
Proje Ofisi: Denizli Büyükşehir Belediyesi
Proje Tipi: Sosyal Tesis, Kültür Merkezi
Proje Tipi Grubu: Kültür
Tasarım Ekibi: Ceyda Elif Çintan
İşveren: Denizli Büyükşehir Belediyesi
Ana Yüklenici: DMR Enerji Otomasyon İnşaat Taahhüt Sanayi ve Ticaret Limited Şirketi
İç Mekan Projesi: Ceyda Elif Çintan
Konsept Tasarımı: Ceyda Elif Çintan
Uygulama Projesi: Ceyda Elif Çintan
Cephe Tasarımı: Ceyda Elif Çintan
Statik Projesi: Faruk Bozkaya, Soner İzgi
Proje Başlangıç Yılı: 2016
Proje Bitiş Yılı: 2017
İnşaat Başlangıç Yılı: 2017
İnşaat Bitiş Yılı: 2018
Arsa Alanı: 4,221 m2
Toplam İnşaat Alanı: 1,051 m2