9/9
Paylaş
Resmi Orjinal Boyutunda Göster
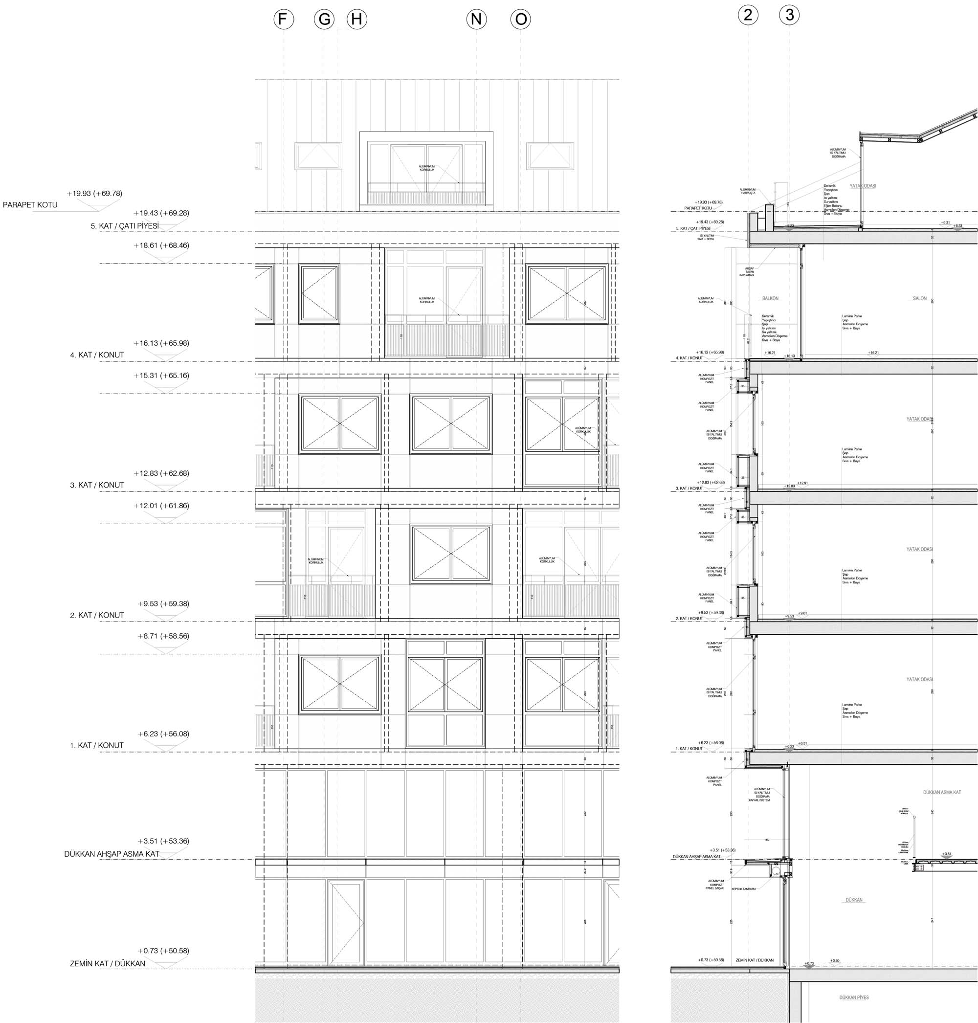
GKT 1484-87
Proje Yeri: Eyüpsultan, İstanbul
Proje Ofisi: CM Mimarlık
Proje Tipi: Apartman
Proje Tipi Grubu: Konut
Tasarım Ekibi: Cem Sorguç
İşveren: Uçar Gayrimenkul
Yardımcı: Ege Adaş, Özlem Yılmaz
Ana Yüklenici: Uçar Gayrimenkul
Fotoğraf: Cemal Emden
Proje Başlangıç Yılı: 2014
Proje Bitiş Yılı: 2015
İnşaat Başlangıç Yılı: 2015
İnşaat Bitiş Yılı: 2018
Arsa Alanı: 1,172 m2
Toplam İnşaat Alanı: 7,760 m2