10/16
Paylaş
Resmi Orjinal Boyutunda Göster
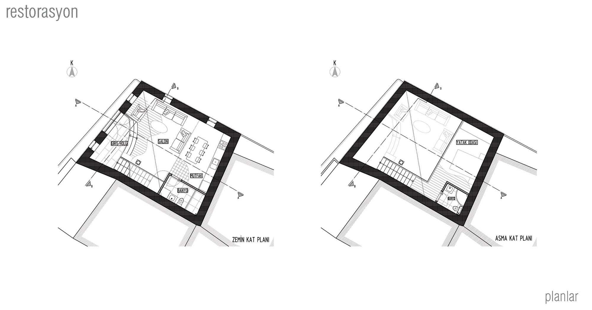
Bozcaada K4 Evi
Proje Yeri: Çanakkale, Bozcaada
Proje Ofisi: DAFNİ Mimarlık
Proje Tipi: Tek Ev / Villa
Proje Tipi Grubu: Konut
Tasarım Ekibi: Defne Sözbir, Can Sözbir
Ana Yüklenici: DAFNİ Mimarlık
Statik Projesi: Acar Mühendislik
Mekanik Projesi: Çizgi Mühendislik
Elektrik Projesi: Akkar Mühendislik
Fotoğraf: Burak Teoman
Proje Başlangıç Yılı: 2017
Proje Bitiş Yılı: 2017
İnşaat Başlangıç Yılı: 2017
İnşaat Bitiş Yılı: 2018
Toplam İnşaat Alanı: 65 m²