10/15
Paylaş
Resmi Orjinal Boyutunda Göster
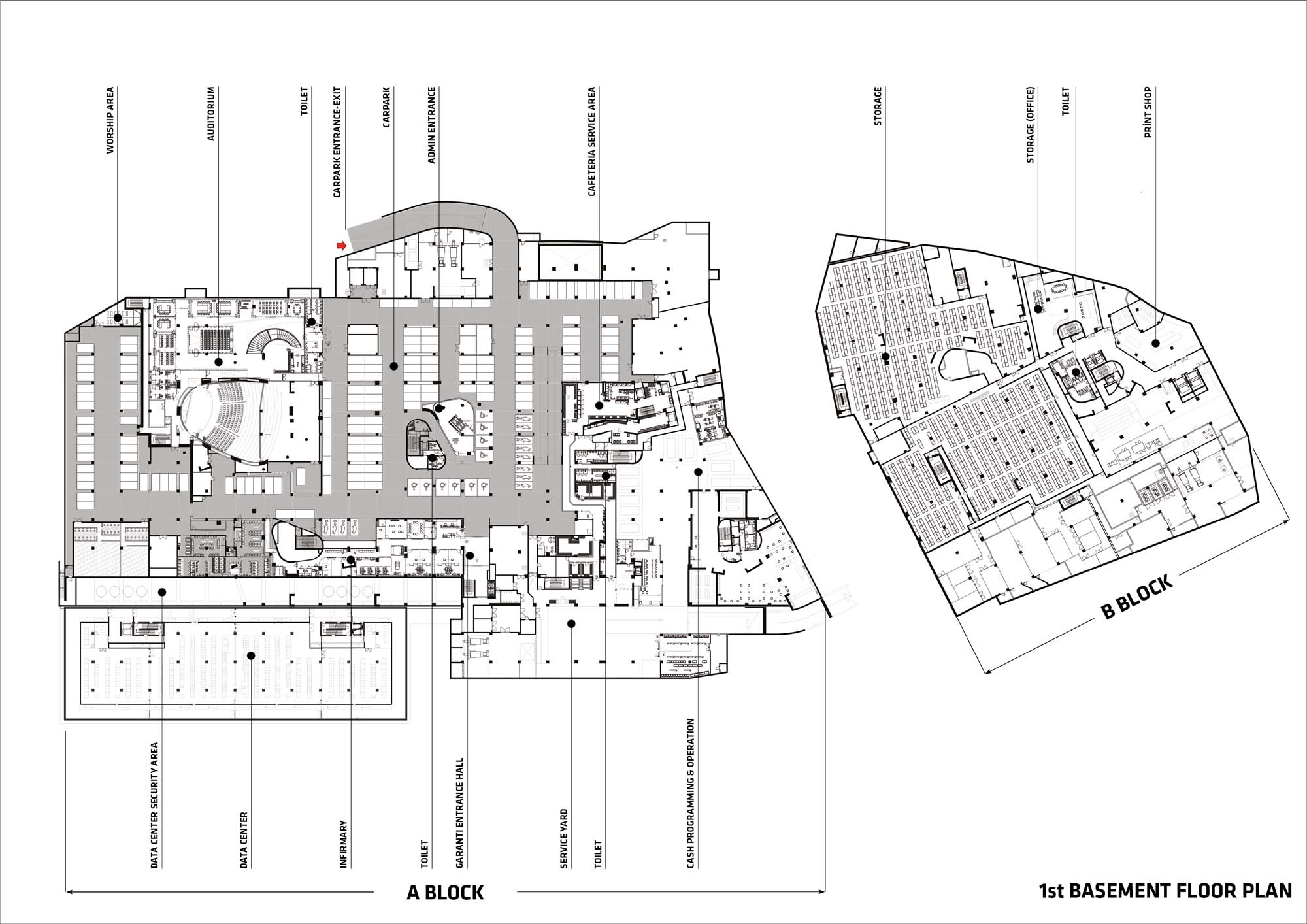
Garanti Teknoloji Kampüsü
Project Location: Pendik, İstanbul
Project Office: ERA Şehircilik Mimarlık
Project Type: Offices
Proje Tipi Grubu: Commercial
Tasarım Ekibi: Ali Hızıroğlu
Employer: Garanti Bankası
Consultant: Werner Sobek, Tim Macfarlane, Mimta EkoYapı
Yardımcı: Ertun Hızıroğlu, Faik Barutçu, Fahrettin Çiloğlu, Çiğdem Duman, Serap Aydınel, Gökçen Demirkır, Melis Uysal, Sevgi Paçcı, Çağla Özgen, Elif Taşal, Ekim Orhan İsmi, Süreyya Numanoğlu, Gülizar Bozdoğan, Zuhal Özen, Şafak Kızılırmak, Elif Özil
Ana Yüklenici: Koray İnşaat, Altınsoy İnşaat
Alt Yüklenici: MOB, Decart İnşaat, Metal Yapı, AE-Arma Elektropanç, Natural Peyzaj
Interior Architecture: Midek Mingü Mimarlık, ERA Şehircilik Mimarlık
Projcet Manager: Midek Mingü Mimarlık, ERA Şehircilik Mimarlık
Lighting Project: Planlux, Speirs and Major
Structural Project: Mpi, Melih Bulgur
Electrical Project: Proma, Erdoğan Duman
Acoustic Consultant: Talayman Akustik
Model: MİN Tasarım
Photography: Cemal Emden
Project Start Date: 2010
Project End Date: 2012
Construction Start Date: 2013
Construction End Date: 2018
Building Plot Area: 53,000 m²
Total Construction Area: 142,000 m2