14/15
Paylaş
Resmi Orjinal Boyutunda Göster
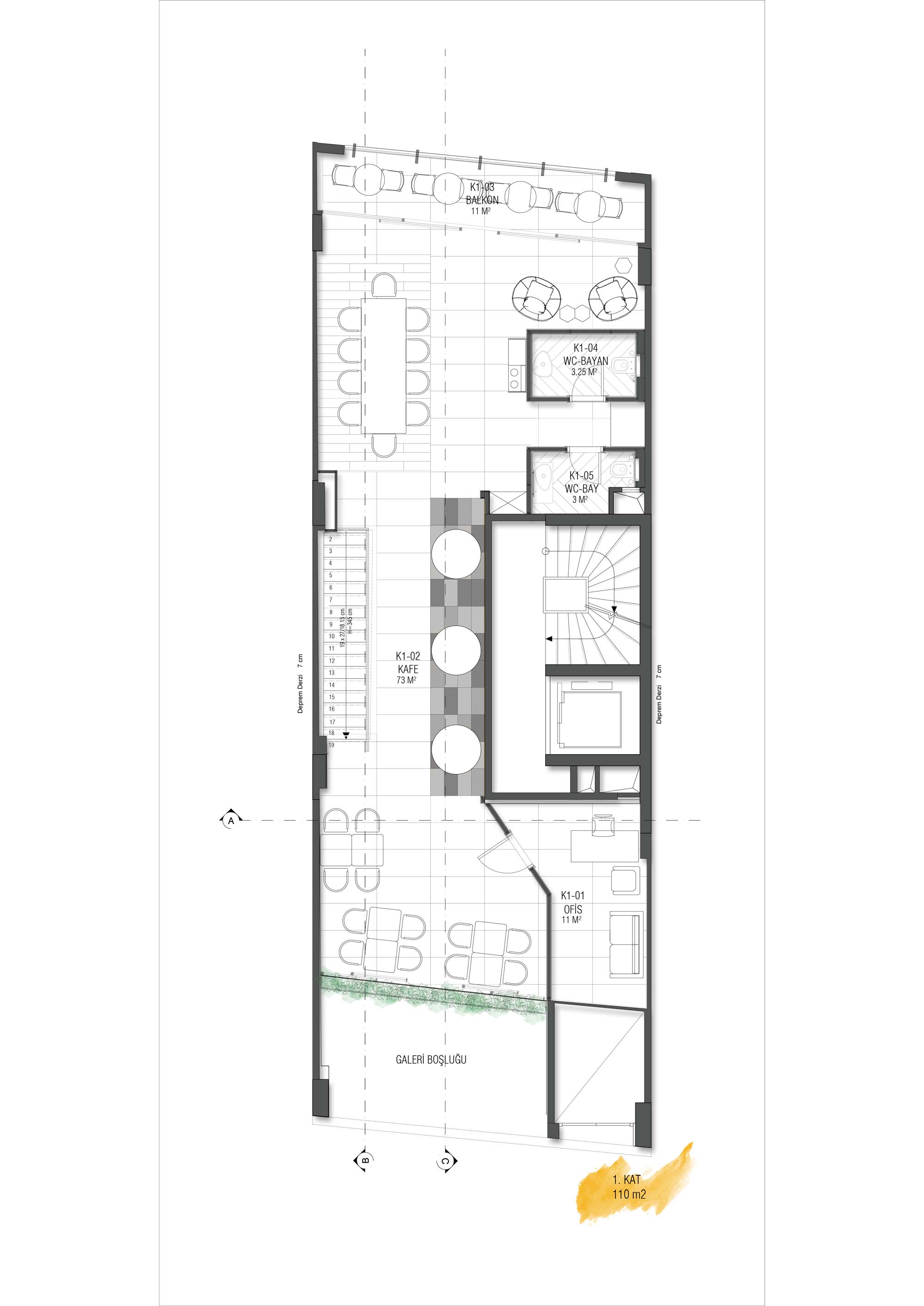
Bronwyn Cafe
Proje Yeri: Şişli, İstanbul
Proje Ofisi: GC Mimarlık
Proje Tipi: Restoran / Kafe / Bar
Proje Tipi Grubu: Ticari
Tasarım Ekibi: Şebnem Gürcün, Yunus Emre Karataş, Selin Ataç
İşveren: Ozan İçkale
Danışman: Öznur Çağlayan
Yardımcı: Mertcan Özlü, Beyzanur Kireççi
Ana Yüklenici: Karamer Mühendislik ve İnşaat
Alt Yüklenici: Efeler Ahşap
Proje Yöneticisi: Şebnem Gürcün
Mekanik Projesi: Burhan İman
Elektrik Projesi: Karamer Mühendislik ve İnşaat
Tesisat Projesi: Karamer Mühendislik ve İnşaat
Mimari Mesleki Kontrollük: GC Mimarlık
Şantiye Yöneticisi: GC Mimarlık
Proje Başlangıç Yılı: 2018
Proje Bitiş Yılı: 2018
İnşaat Başlangıç Yılı: 2018
İnşaat Bitiş Yılı: 2018
Arsa Alanı: 116 m²
Toplam İnşaat Alanı: 328 m²