22/23
Paylaş
Resmi Orjinal Boyutunda Göster
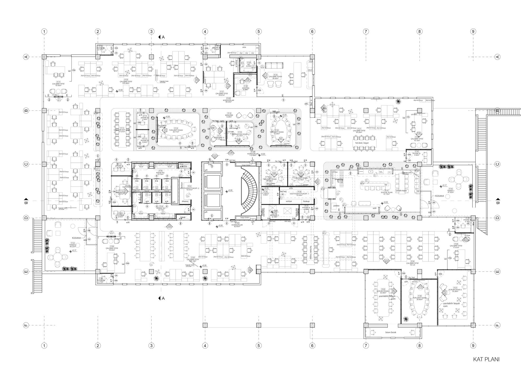
Koç Finans Genel Müdürlük Ofisi
Proje Yeri: Üsküdar, İstanbul
Proje Ofisi: Bakırküre Mimarlık
Proje Tipi: Ofis
Proje Tipi Grubu: Ticari
Tasarım Ekibi: Gürhan Bakırküre
İşveren: Koç Finansman AŞ
Yardımcı: Doruk Soyal, Nur Sarıbal, Sinem Yardımcı, Ahmet Özyazgan, Hülya Atan, Leyal Kurtuluş
Ana Yüklenici: Bakırküre Mimarlık
Proje Yöneticisi: Hülya Atan, Leyal Kurtuluş
Şantiye Yöneticisi: Çağrı Dolapçı
Proje Başlangıç Yılı: 2017
Proje Bitiş Yılı: 2017
İnşaat Başlangıç Yılı: 2017
İnşaat Bitiş Yılı: 2018
Toplam İnşaat Alanı: 1,700 m2