18/22
Paylaş
Resmi Orjinal Boyutunda Göster
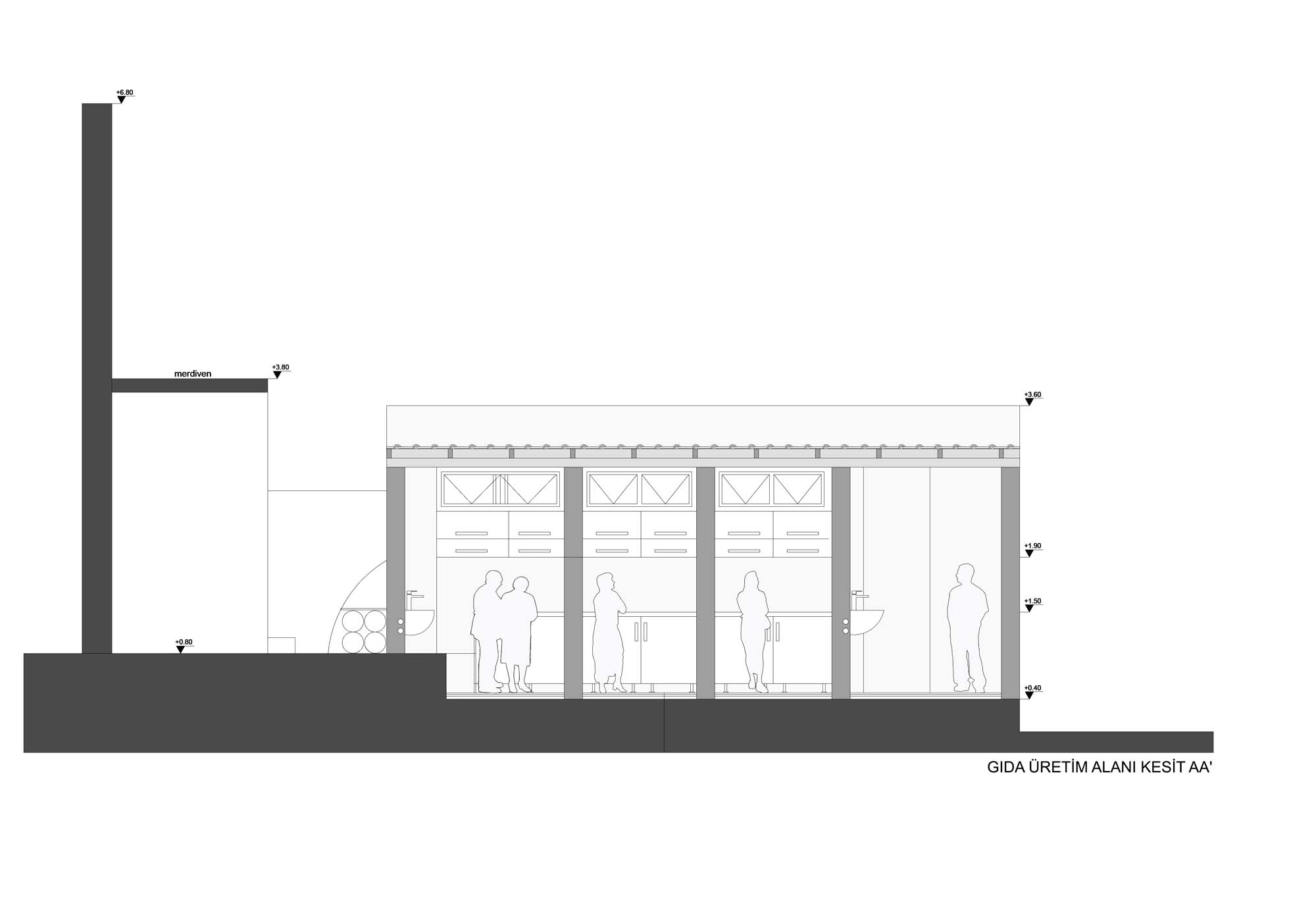
Yırca Sabunevi
Proje Yeri: Manisa, Soma
Proje Ofisi: Herkes İçin Mimarlık Derneği
Proje Tipi: Diğer Endüstri Yapıları
Proje Tipi Grubu: Endüstriyel
Tasarım Ekibi: Anıl Tuhanioğlu, Emre Gündoğdu, Merve Gül Özokçu, Mina Öner, Yağmur Kutlar, Yuvacan Atmaca, Ahmet Minez, Ecem Tüfekçi, Feyza Çınar, Fırat Altundağ, Furkan Demirtaş, Gökçe Er, Hatice Kübra Öztürk, İdil Bayar, Kenan Kahya, Melek Aydoğan, Melih Yavuz, Mesut Adanır, Zehra Ersoy
İşveren: Yırca Sabunevi El ve Ev Ürünleri İktisadi İşletmesi
Danışman: Hayriye Sözen
Ana Yüklenici: Yırca Sabunevi El ve Ev Ürünleri İktisadi İşletmesi
Alt Yüklenici: Herkes İçin Mimarlık Derneği
Proje Başlangıç Yılı: 2017
Proje Bitiş Yılı: 2018
İnşaat Başlangıç Yılı: 2017
İnşaat Bitiş Yılı: 2018
Toplam İnşaat Alanı: 172 m2