13/25
Paylaş
Resmi Orjinal Boyutunda Göster
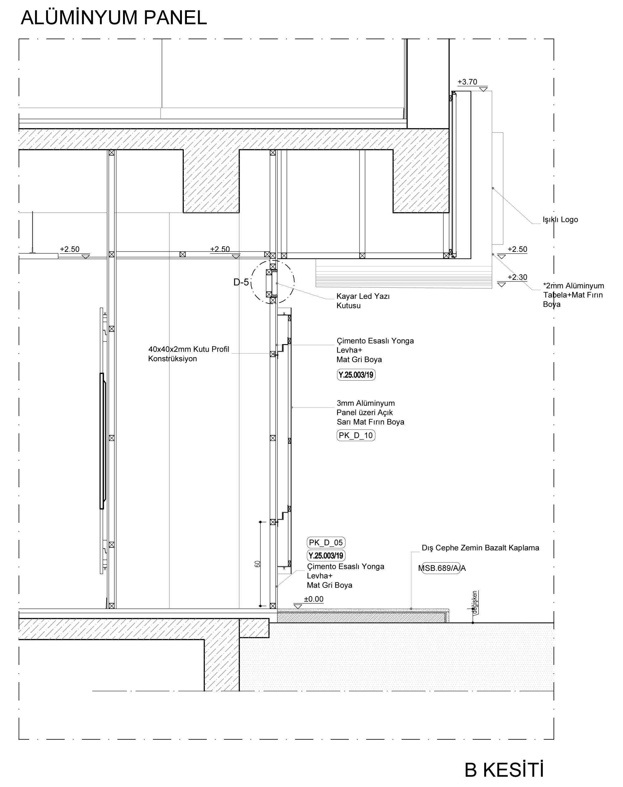
PTT Levent Şubesi
Proje Yeri: İstanbul, Beşiktaş
Proje Ofisi: I-AM
Proje Tipi: Ofis
Proje Tipi Grubu: Kamu
Tasarım Ekibi: Ertuğrul Yurdakul, Vural Armutçuoğlu, Şevket Öztaş
İşveren: PTT A.Ş.
Yardımcı: Gözde Yılmaz, Cem Yavuzcan, Melis Mısırlıoğlu, Zeynep Beşer
Ana Yüklenici: Mata Mimarlık
Proje Yöneticisi: Zeynep Durukan, Cem Çıtak
Proje Başlangıç Yılı: 2017
Proje Bitiş Yılı: 2018
İnşaat Başlangıç Yılı: 2018
İnşaat Bitiş Yılı: 2018
Toplam İnşaat Alanı: 560 m²