20/22
Paylaş
Resmi Orjinal Boyutunda Göster
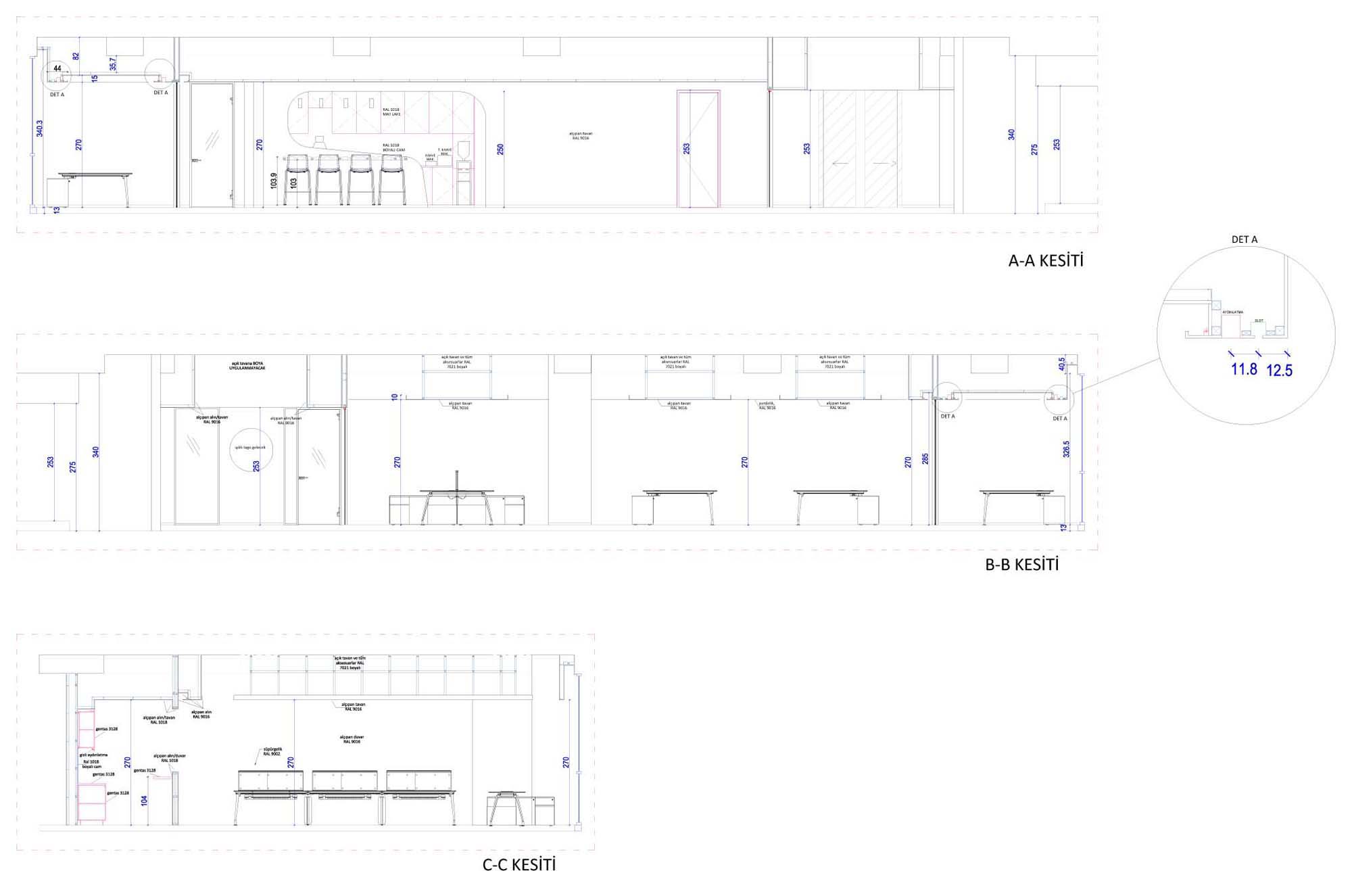
IstJET Aviation Trading Ofisleri
Proje Yeri: Bağcılar, İstanbul
Proje Ofisi: Jeyan Ülkü Mimarlık
Proje Tipi: Ofis
Proje Tipi Grubu: Ticari
Tasarım Ekibi: Melis Kurultay, Pınar Tola, Yasemin Üçerler, Bengü Şahin
İşveren: IstJET Aviation Trading
Ana Yüklenici: Jeyan Ülkü Mimarlık
Mekanik Projesi: DRN Mühendislik
Elektrik Projesi: BİZ Mühendislik
Fotoğraf: Ali Bekman Photography
Proje Başlangıç Yılı: 2018
Proje Bitiş Yılı: 2018
İnşaat Başlangıç Yılı: 2018
İnşaat Bitiş Yılı: 2018
Toplam İnşaat Alanı: 600 m²