15/22
Paylaş
Resmi Orjinal Boyutunda Göster
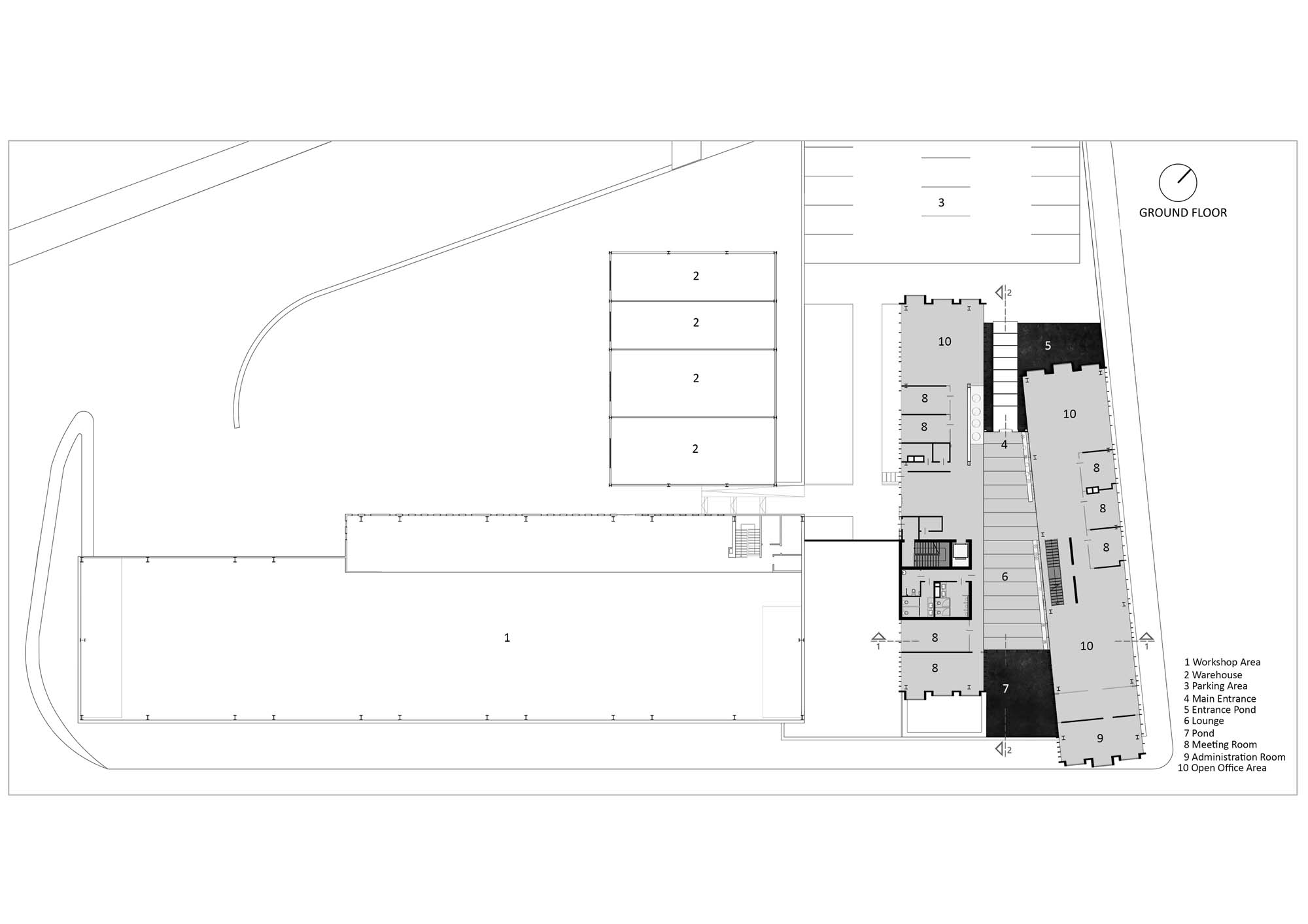
Kumport
Proje Yeri: Ambarlı, İstanbul
Proje Ofisi: KG Mimarlık
Proje Tipi: Ofis
Proje Tipi Grubu: Ticari
Tasarım Ekibi: Kurtul Erkmen
İşveren: Kumport Liman Hizmetleri ve Lojistik Sanayi ve Ticaret AŞ
Yardımcı: Türker Fırat , Tilbe Hazal Ağaoğlu, Emre Yiğit, Mesut Özlem, Serhan Günal, Melis Kanadıkırık Savaş, Büşra Yeltekin
Ana Yüklenici: Yamans İnşaat
Proje Yöneticisi: Büşra Yeltekin
Statik Projesi: Büro Statik Mühendislik
Mekanik Projesi: Enve Enerji Mühendislik
Elektrik Projesi: Enve Enerji Mühendislik
Çelik Projesi: Büro Statik Mühendislik
Fotoğraf: Büşra Yeltekin
Proje Başlangıç Yılı: 2016
Proje Bitiş Yılı: 2016
İnşaat Başlangıç Yılı: 2017
İnşaat Bitiş Yılı: 2018
Arsa Alanı: 126,166 m2
Toplam İnşaat Alanı: 7,602 m2