33/36
Paylaş
Resmi Orjinal Boyutunda Göster
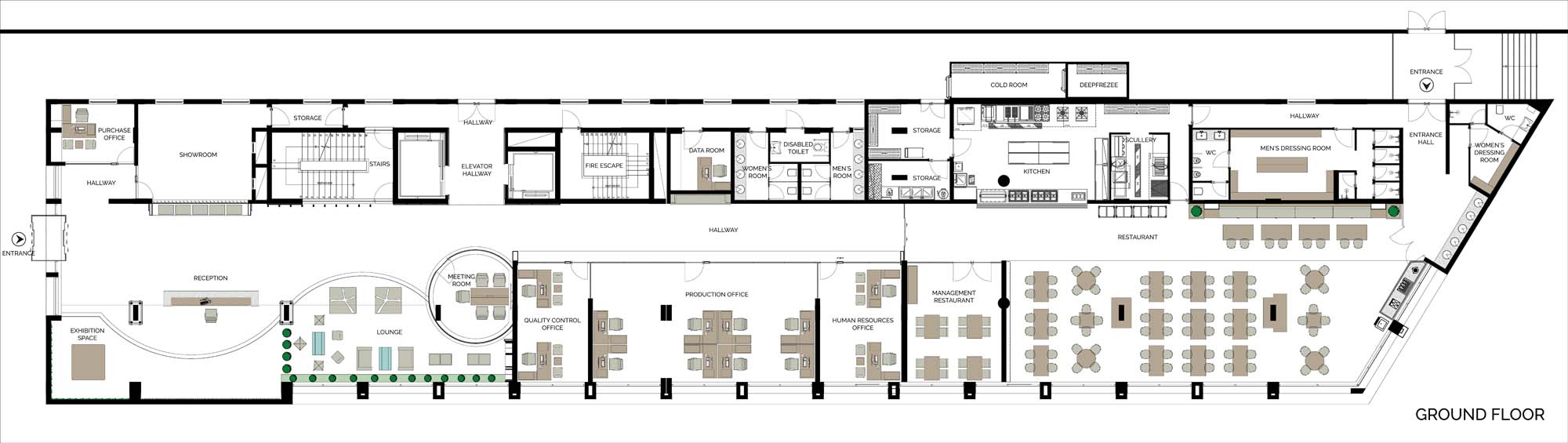
Camsaş Genel Müdürlük Binası İç Mekan Projesi
Proje Yeri: Antalya, Döşemealtı
Proje Ofisi: KST Mimarlık
Proje Tipi: Ofis
Proje Tipi Grubu: Ticari
Tasarım Ekibi: Kemal Serkan Tokis
İşveren: Camsaş AŞ
Ana Yüklenici: KST Mimarlık
Grafik Tasarım: Eha Grafik
Fotoğraf: Doğa Yusuf Dökdök
Proje Başlangıç Yılı: 2018
Proje Bitiş Yılı: 2018
İnşaat Başlangıç Yılı: 2018
İnşaat Bitiş Yılı: 2018
Toplam İnşaat Alanı: 3,800 m²