23/24
Paylaş
Resmi Orjinal Boyutunda Göster
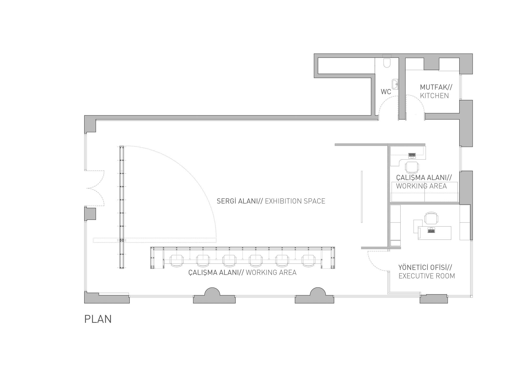
Galeri Nev Kırlangıç
Proje Yeri: Çankaya, Ankara
Proje Ofisi: Motto Mimarlık
Proje Tipi: Sergi Mekanı / Galeri
Proje Tipi Grubu: Kültür
Tasarım Ekibi: Namık Erkal, Onur Özkoç
İşveren: Galeri Nev
Yardımcı: Zeynep Elif Kar, Elif Görkem Köse, Caner Arıkboğa
Ana Yüklenici: Motto Mimarlık
Mekanik Projesi: İhsan Beşeli
Elektrik Projesi: Engin Pekyılmaz
Fotoğraf: Duygu Tüntaş, Galeri Nev
Proje Başlangıç Yılı: 2017
Proje Bitiş Yılı: 2018
İnşaat Başlangıç Yılı: 2017
İnşaat Bitiş Yılı: 2018
Toplam İnşaat Alanı: 150 m2