18/22
Paylaş
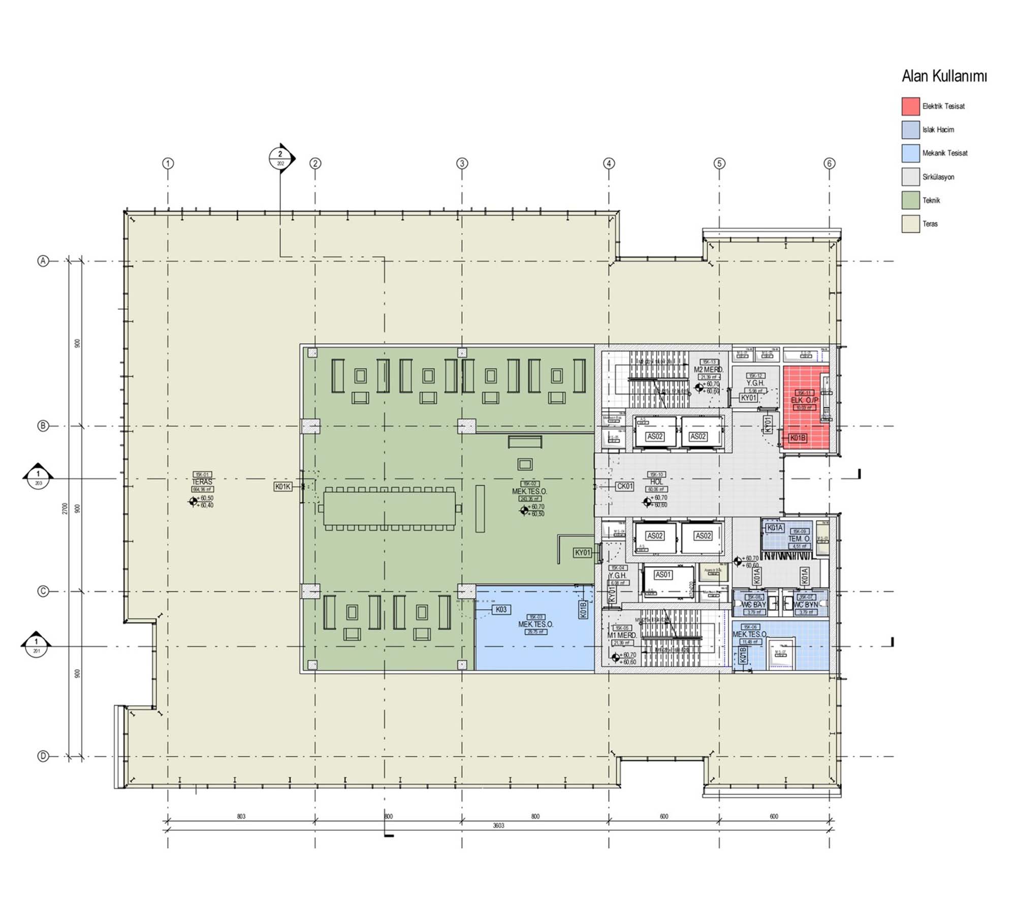
Resmi Orjinal Boyutunda Göster
Doğuş Otomotiv Genel Merkezi
Proje Yeri: İstanbul, Kartal
Proje Ofisi: MuuM
Proje Tipi: Ofis
Proje Tipi Grubu: Ticari
Tasarım Ekibi: Murat Aksu, Umut İyigün
İşveren: Doğuş Otomotiv
Yardımcı: Merve Aksu, Makhamat Rakhmanali Uulu, Mert Ayanoğlu, Serkan Kocabay, Yılmaz Kürtüncü, Melis Öztürk, Zerina Yıldız, Müge İnan
Ana Yüklenici: Çalışkan İnşaat
Peyzaj Mimarlığı: AARTI
Proje Yöneticisi: Doğuş Otomotiv
Statik Projesi: Yapı Akademisi
Mekanik Projesi: Elmak
Elektrik Projesi: Aykar Mühendislik
Altyapı Projesi: Proses
Fotoğraf: Yercekim Mimari Fotograf
Proje Başlangıç Yılı: 2013
Proje Bitiş Yılı: 2014
İnşaat Başlangıç Yılı: 2016
İnşaat Bitiş Yılı: 2018
Arsa Alanı: 1,500 m2
Toplam İnşaat Alanı: 25,000 m2