62/71
Paylaş
Resmi Orjinal Boyutunda Göster
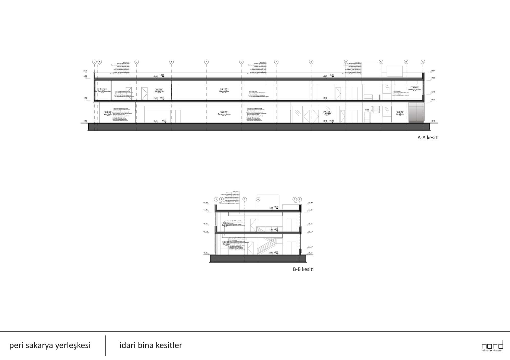
PERI Sakarya Yerleşkesi
Proje Yeri: Hendek, Sakarya
Proje Ofisi: nord mimarlık-tasarım
Proje Tipi: Fabrika , Ofis
Proje Tipi Grubu: Ticari, Endüstriyel
Tasarım Ekibi: Erkan Ural, Burcu Yücetaş Ural, Bengüsu İbiş, Alper Yıldız, Bilgi Eroğlu
İşveren: PERI Sakarya İskele ve Kalıp Üretim
Danışman: Thomas Deuble, PERI C+MF
Yardımcı: Ali Uğur Çolak
Ana Yüklenici: Gün İnşaat
Peyzaj Mimarlığı: Adagarden Peyzaj, nord mimarlık-tasarım
İç Mekan Projesi: nord mimarlık-tasarım
Proje Yöneticisi: Erkan Ural
Konsept Tasarımı: PERI C+MF, nord mimarlık-tasarım
Uygulama Projesi: nord mimarlık-tasarım
Statik Projesi: Hasan Özek
Mekanik Projesi: Volume Mühendislik
Elektrik Projesi: Bersis Elektrik
Fotoğraf: Murat Tekin
Proje Başlangıç Yılı: 2017
Proje Bitiş Yılı: 2018
İnşaat Başlangıç Yılı: 2017
İnşaat Bitiş Yılı: 2018
Arsa Alanı: 89,000 m²
Toplam İnşaat Alanı: 48,255 m2