32/37
Paylaş
Resmi Orjinal Boyutunda Göster
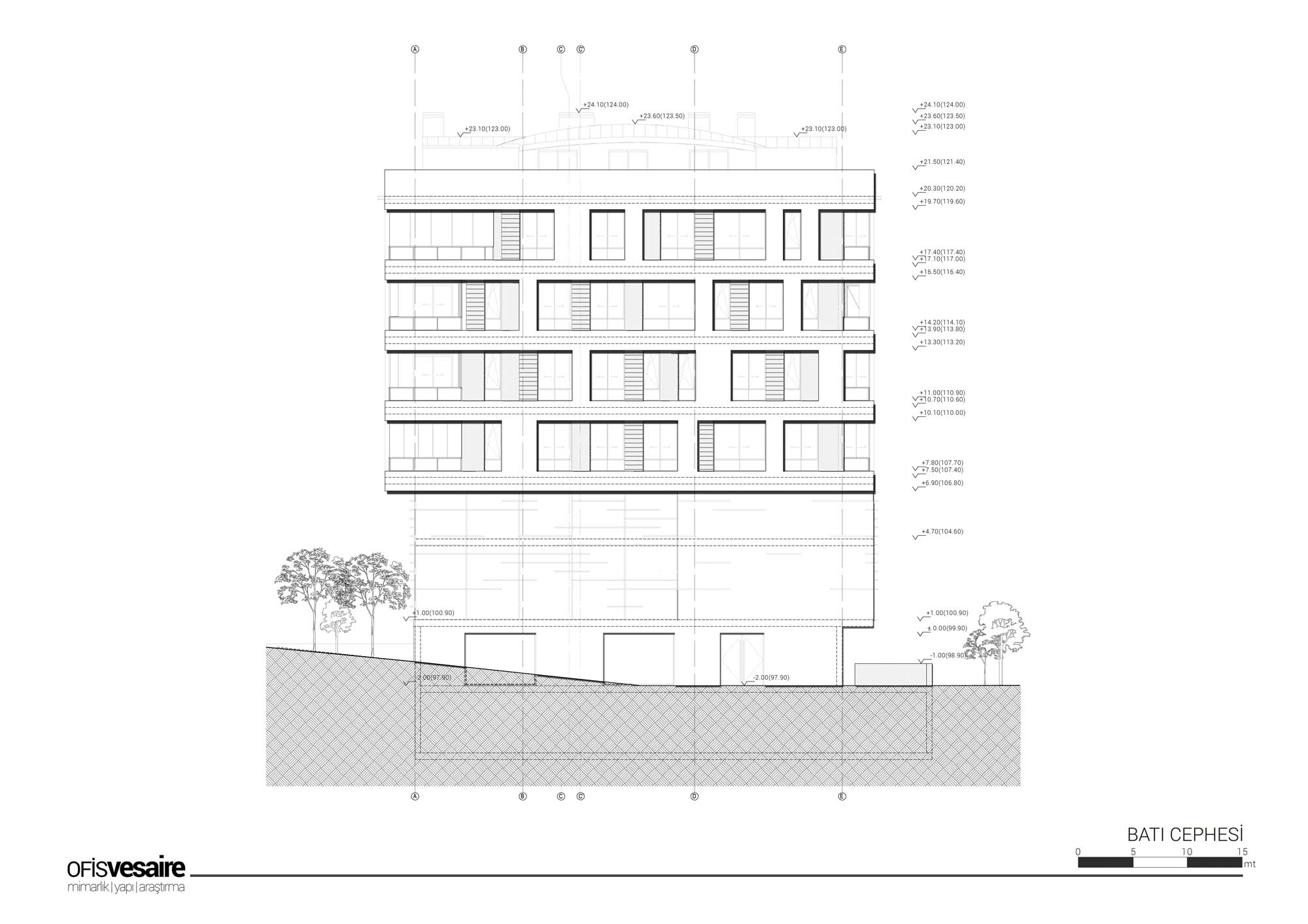
AVVLU
Proje Yeri: Gebze, Kocaeli (İzmit)
Proje Ofisi: ofisvesaire
Proje Tipi: Apartman
Proje Tipi Grubu: Konut
Tasarım Ekibi: Melis Varkal, Mustafa Gökhan Çelikağ, Ceren Kocabıyık, Merve Köz
İşveren: Yuva Yapı
Ana Yüklenici: Yuva Yapı
Statik Projesi: Endurans Proje
Mekanik Projesi: Mustafa Aydın
Elektrik Projesi: Erkan Tetikoğulları
Proje Başlangıç Yılı: 2015
Proje Bitiş Yılı: 2016
İnşaat Başlangıç Yılı: 2016
İnşaat Bitiş Yılı: 2018
Arsa Alanı: 2,600 m2
Toplam İnşaat Alanı: 4,500 m²