17/27
Paylaş
Resmi Orjinal Boyutunda Göster
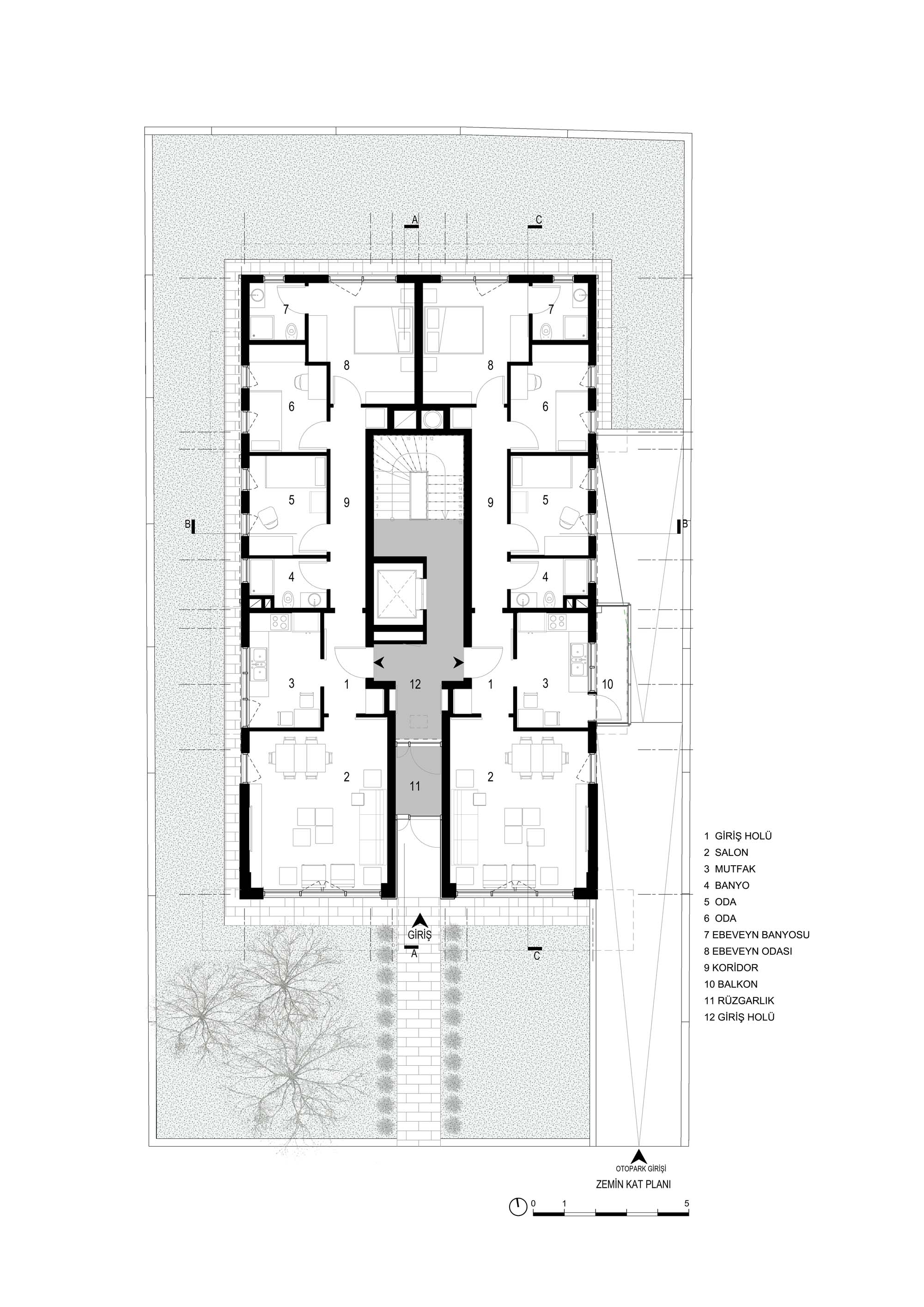
Alaçam 25
Proje Yeri: Çankaya, Ankara
Proje Ofisi: Özdihan Gökçe Mimarlık
Proje Tipi: Apartman
Proje Tipi Grubu: Konut
Tasarım Ekibi: Özdihan Gökçe, Ceyda Gökmen
İşveren: Çağnak İnşaat
Danışman: Rafet Gökoğlu
Yardımcı: Merve Güven, Kamran Farshchi
Ana Yüklenici: Çağnak İnşaat
Peyzaj Mimarlığı: Önder Mutlu, Yeşil Beyaz Peyzaj
Statik Projesi: Yunus Sarıkaya, Sarıkaya İnşaat
Mekanik Projesi: Volkan Ünlü, Ünlü Mühendislik
Elektrik Projesi: Kemal Aykaç, Özay Mühendislik
Fotoğraf: Ece Derilgen, Kamran Farshchi, Özgür Özdemircan
Proje Başlangıç Yılı: 2015
Proje Bitiş Yılı: 2016
İnşaat Başlangıç Yılı: 2016
İnşaat Bitiş Yılı: 2018
Arsa Alanı: 572 m2
Toplam İnşaat Alanı: 1,997 m2