17/19
Paylaş
Resmi Orjinal Boyutunda Göster
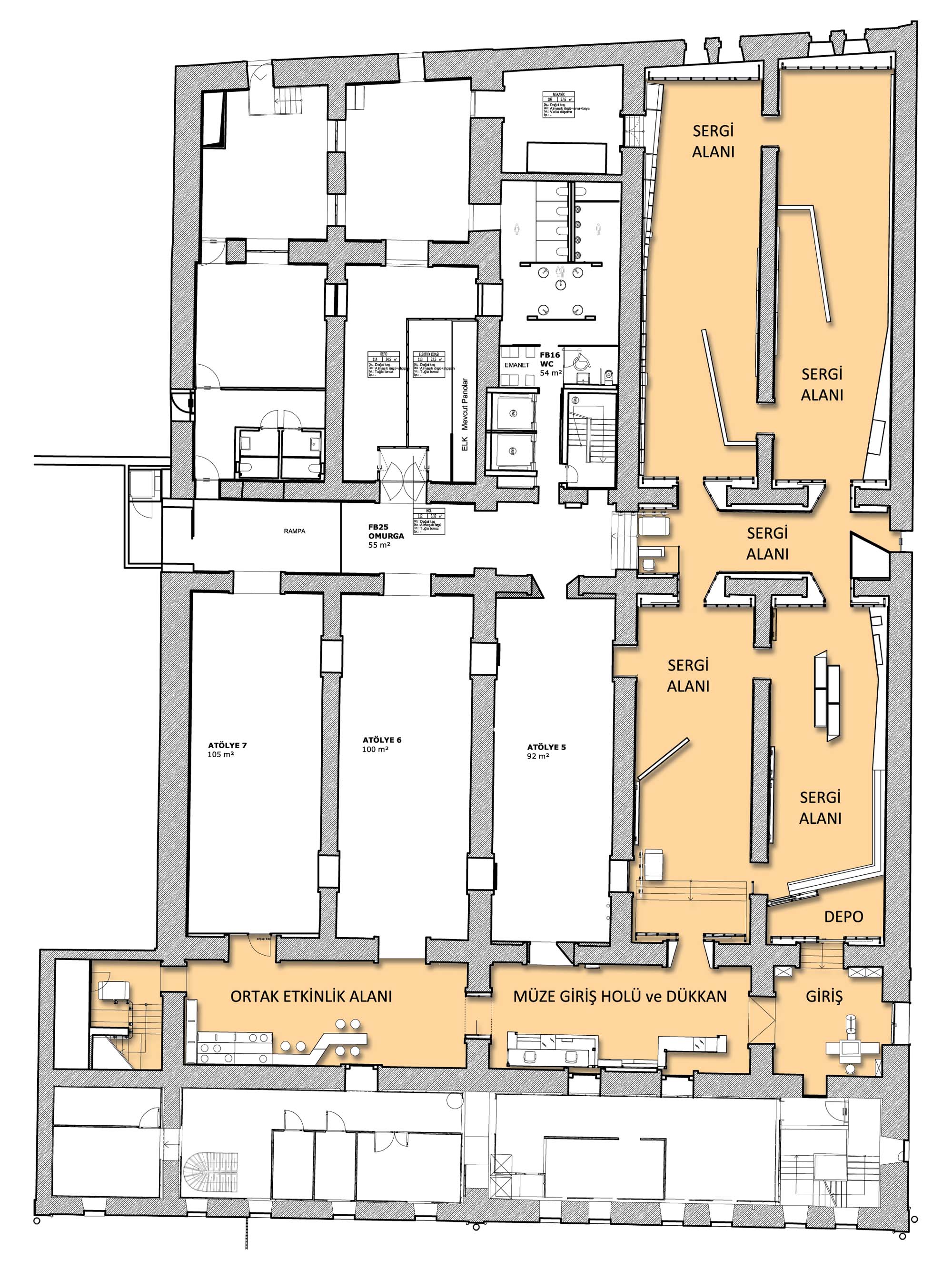
Ara Güler Müzesi Bomontiada
Project Location: İstanbul, Şişli
Project Office: PAB Mimarlık
Project Type: Museum
Proje Tipi Grubu: Kültür
Tasarım Ekibi: Pınar Gökbayrak, Ali Eray, Burçin Yıldırım, Berin Erikçi
Employer: Doğuş Grubu
Consultant: Karşılaşmalar
Ana Yüklenici: Dromo Mimarlık
Lighting Project: Y+ALD Yıldız Ağan Aydınlatma Tasarım ve Danışmanlık
Mechanical Project: Akım Mühendislik
Electrical Project: Energiya Mühendislik
Akustik Projesi: MEA Akustik
Fire Safety Consultant: Abdurrahman Kılıç, Etik Mühendislik
Photography: Yercekim Mimari Fotograf
Project Start Date: 2018
Project End Date: 2018
Construction Start Date: 2018
Construction End Date: 2018
Total Construction Area: 971 m2