10/13
Paylaş
Resmi Orjinal Boyutunda Göster
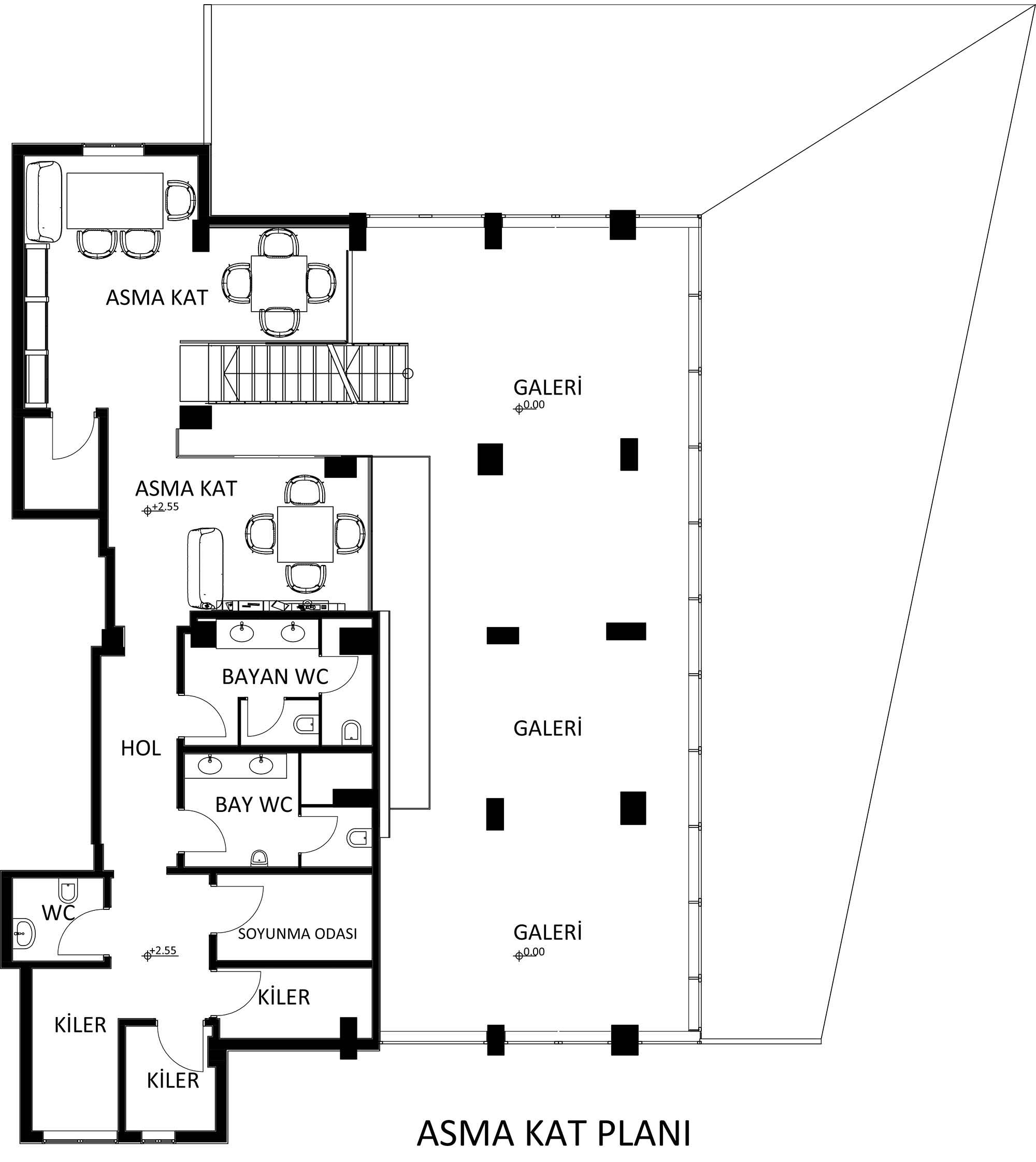
Öğrenci Kahvesi Serdivan
Proje Yeri: Serdivan, Sakarya
Proje Ofisi: Paker Mimarlık
Proje Tipi: Restoran / Kafe / Bar
Proje Tipi Grubu: Ticari
Tasarım Ekibi: Nuralp Paker, Esma Gündüz, Selva Bayrak
İşveren: Bora Taşçıoğlu
Ana Yüklenici: Paker Mimarlık
Fotoğraf: Cenk Yalgın
Proje Başlangıç Yılı: 2018
Proje Bitiş Yılı: 2018
İnşaat Başlangıç Yılı: 2018
İnşaat Bitiş Yılı: 2018
Arsa Alanı: 911 m2
Toplam İnşaat Alanı: 409 m2