15/20
Paylaş
Resmi Orjinal Boyutunda Göster
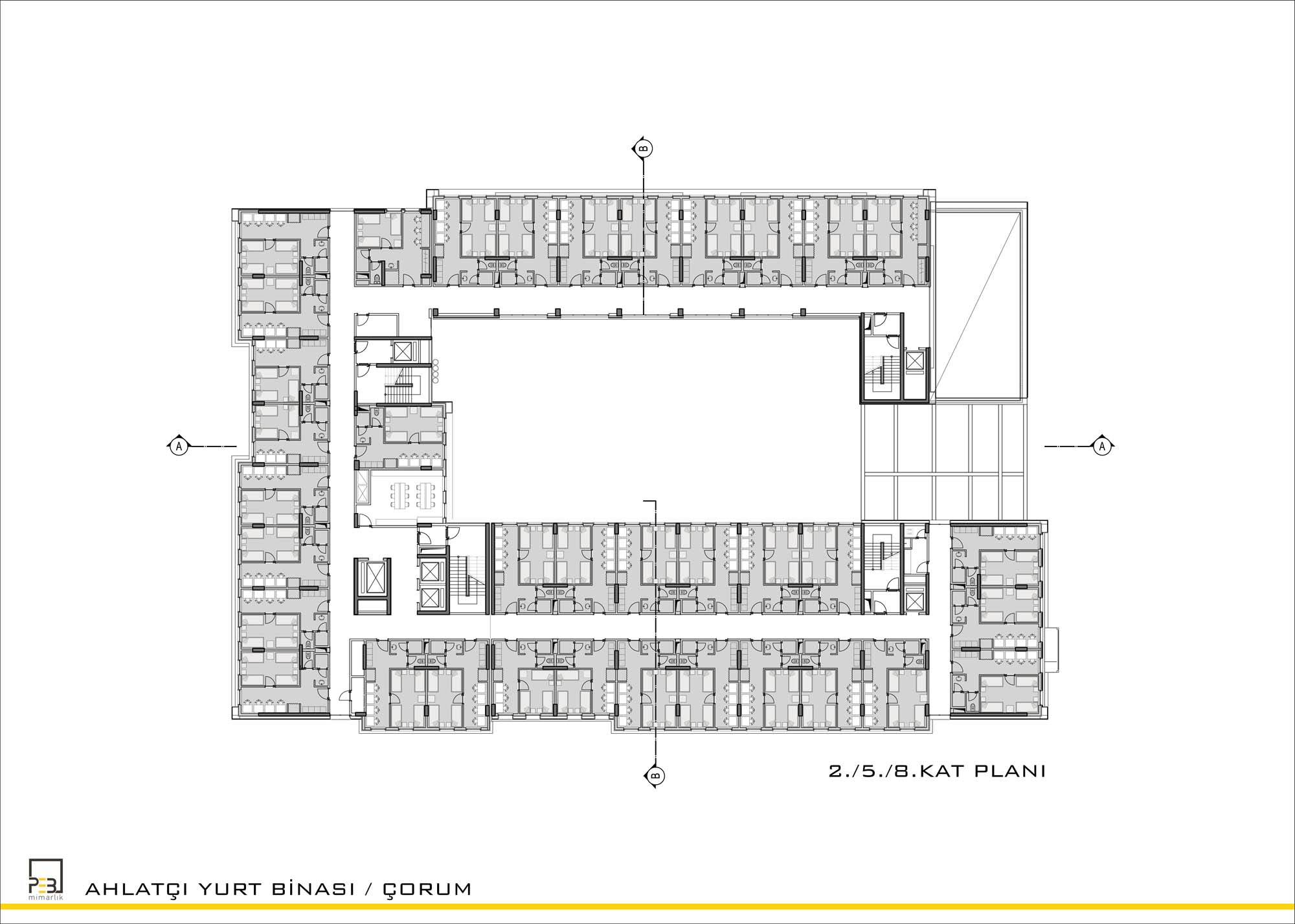
Ahlatçı Yurt Binası
Project Location: Çorum
Project Office: Peb Mimarlık
Project Type: Dormitory / Guesthouse
Proje Tipi Grubu: Konaklama
Tasarım Ekibi: Ebru Gündoğdu Altay, Perin Özen Öztürker
Employer: Ahlatçı Holding
Yardımcı: Hamza Altın, Şener Yakar
Ana Yüklenici: Ahlatçı Holding
Structural Project: CGA Mühendislik
Mechanical Project: İdealist Mühendislik
Electrical Project: İdealist Mühendislik
Project Start Date: 2016
Project End Date: 2017
Construction Start Date: 2017
Construction End Date: 2018
Building Plot Area: 3,967 m2
Total Construction Area: 33,837 m2