41/51
Paylaş
Resmi Orjinal Boyutunda Göster
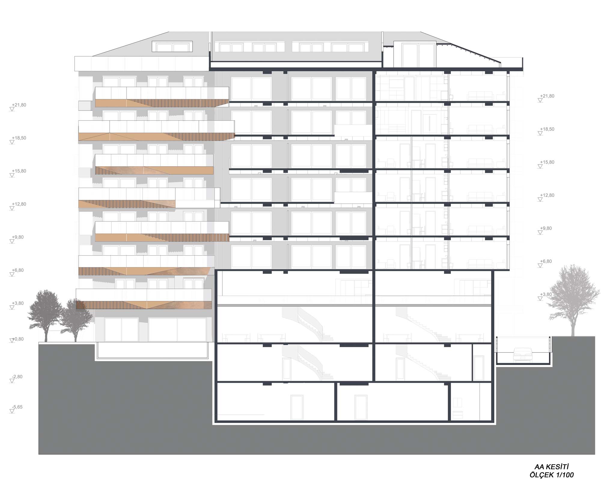
Hane Life Residence
Proje Yeri: İzmir, Narlıdere
Proje Ofisi: Pınart Mimarlık
Proje Tipi: Apartman
Proje Tipi Grubu: Konut
Tasarım Ekibi: Pınar Kayhan
İşveren: Fiyap İnşaat, Pınar Kayhan
Danışman: Fisun Kayhan
Yardımcı: Görkem Yontar, Tilbe Erci, Göksenin Güleç, Işıl Kayhan
Ana Yüklenici: Fiyap İnşaat
Peyzaj Mimarlığı: Pınar Kayhan
Proje Yöneticisi: İbrahim Kayhan
Konsept Tasarımı: Pınar Kayhan
Cephe Tasarımı: Pınar Kayhan
Aydınlatma Projesi: Pınar Kayhan
Statik Projesi: İbrahim Kayhan
Elektrik Projesi: Form Mühendislik
Tesisat Projesi: Arel Mühendislik
Fotoğraf: Pınar Kayhan
Şantiye Yöneticisi: İbrahim Kayhan
Proje Başlangıç Yılı: 2016
Proje Bitiş Yılı: 2017
İnşaat Başlangıç Yılı: 2017
İnşaat Bitiş Yılı: 2018