40/41
Paylaş
Resmi Orjinal Boyutunda Göster
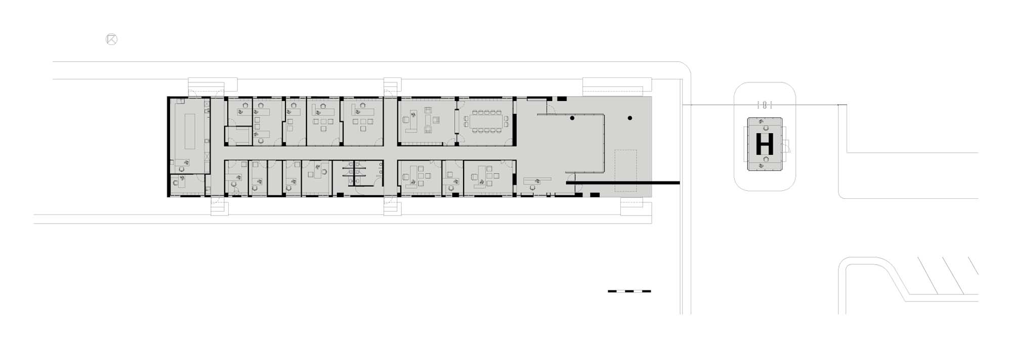
Bağ Yağları İdari Binası
Proje Yeri: İzmir, Aliağa
Proje Ofisi: Roni S. Ruso Mimarlık Bürosu
Proje Tipi: Ofis
Proje Tipi Grubu: Endüstriyel
Tasarım Ekibi: Roni Ruso
İşveren: Bağ Yağları Sanayi ve Ticaret T.A.Ş.
Ana Yüklenici: Evv Yapı Üretim
Alt Yüklenici: Altıntaş Mühendislik, MKŞ Mühendislik, Etik Alüminyum, Dört Yıldız Yapı, Ege Yapı, Nurus
Statik Projesi: Naci Elmalı
Çelik Projesi: Cemal Altıntaş
Fotoğraf: Zeren + Mehmet Yasa Photography
Şantiye Yöneticisi: Kerem Mangıroğlu
Proje Başlangıç Yılı: 2016
Proje Bitiş Yılı: 2016
İnşaat Başlangıç Yılı: 2017, 2018
Arsa Alanı: 100,000 m2
Toplam İnşaat Alanı: 650 m²