17/20
Paylaş
Resmi Orjinal Boyutunda Göster
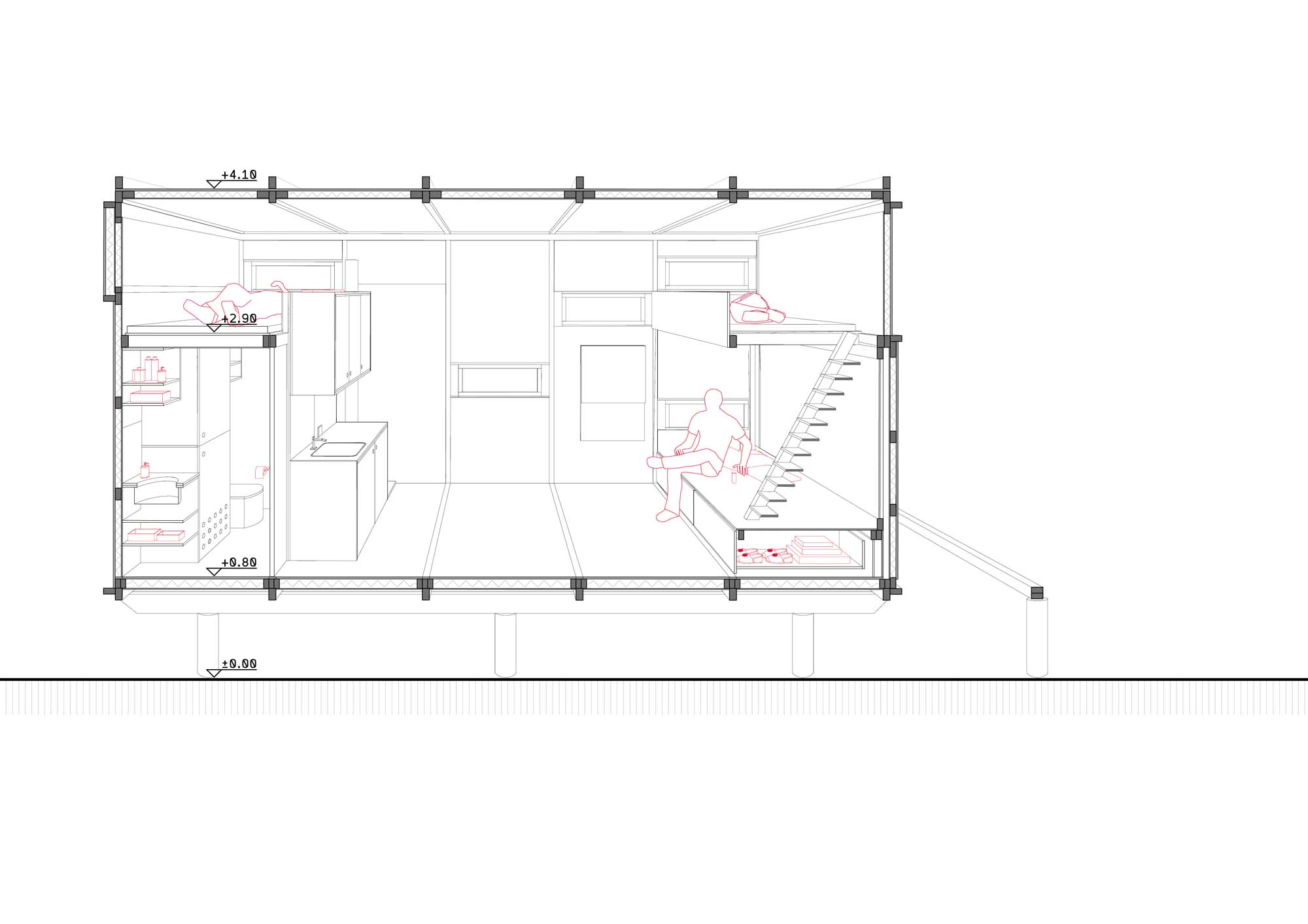
Sınırdaki Barınak
Project Location: Edirne, Keşan
Project Office: SO? Mimarlık ve Fikriyat
Project Type: Single House
Proje Tipi Grubu: Konut
Tasarım Ekibi: Sevince Bayrak, Oral Göktaş
Consultant: Asmaz Ahşap
Yardımcı: Şeyma Erdal, Cansu Özay, Metincan Güzel, Gizem Aşçı, Alex Gahr, Baran Aybars, Tuğçe Selin Türk, Cemal Temel
Ana Yüklenici: Asmaz Ahşap
Photography: SO? Mimarlık ve Fikriyat
Project Start Date: 2017
Project End Date: 2017
Construction Start Date: 2017
Construction End Date: 2018
Building Plot Area: 1,800 m²
Total Construction Area: 18 m²