28/28
Paylaş
Resmi Orjinal Boyutunda Göster
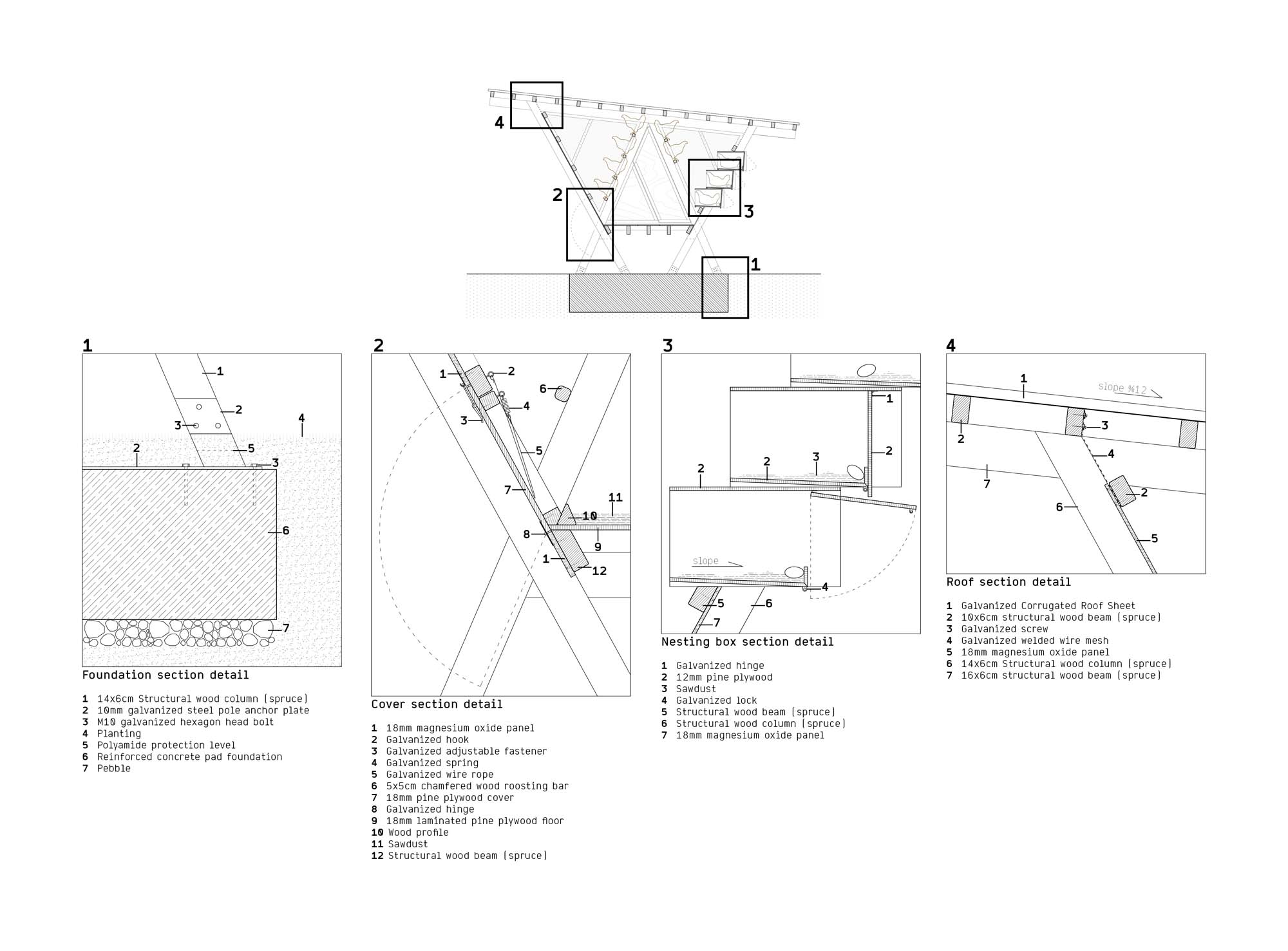
Tavuklar Evi
Proje Yeri: Erzincan
Proje Ofisi: SO? Mimarlık ve Fikriyat
Proje Tipi: Diğer Endüstri Yapıları
Proje Tipi Grubu: Endüstriyel
Tasarım Ekibi: Sevince Bayrak, Oral Göktaş
İşveren: Mehmet Ali Bey Palangası
Yardımcı: Elif Çivici, Derya Ertan Şen, Selin Çubukçuoğlu, Gülce Yuyar, Zeynep Çabuk
Şantiye Yöneticisi: Elif Çivici
Proje Başlangıç Yılı: 2018
Proje Bitiş Yılı: 2018
İnşaat Başlangıç Yılı: 2018
İnşaat Bitiş Yılı: 2018
Arsa Alanı: 7,000 m²
Toplam İnşaat Alanı: 58 m2