25/25
Paylaş
Resmi Orjinal Boyutunda Göster
Zemin İstanbul
Proje Yeri: İstanbul, Beyoğlu
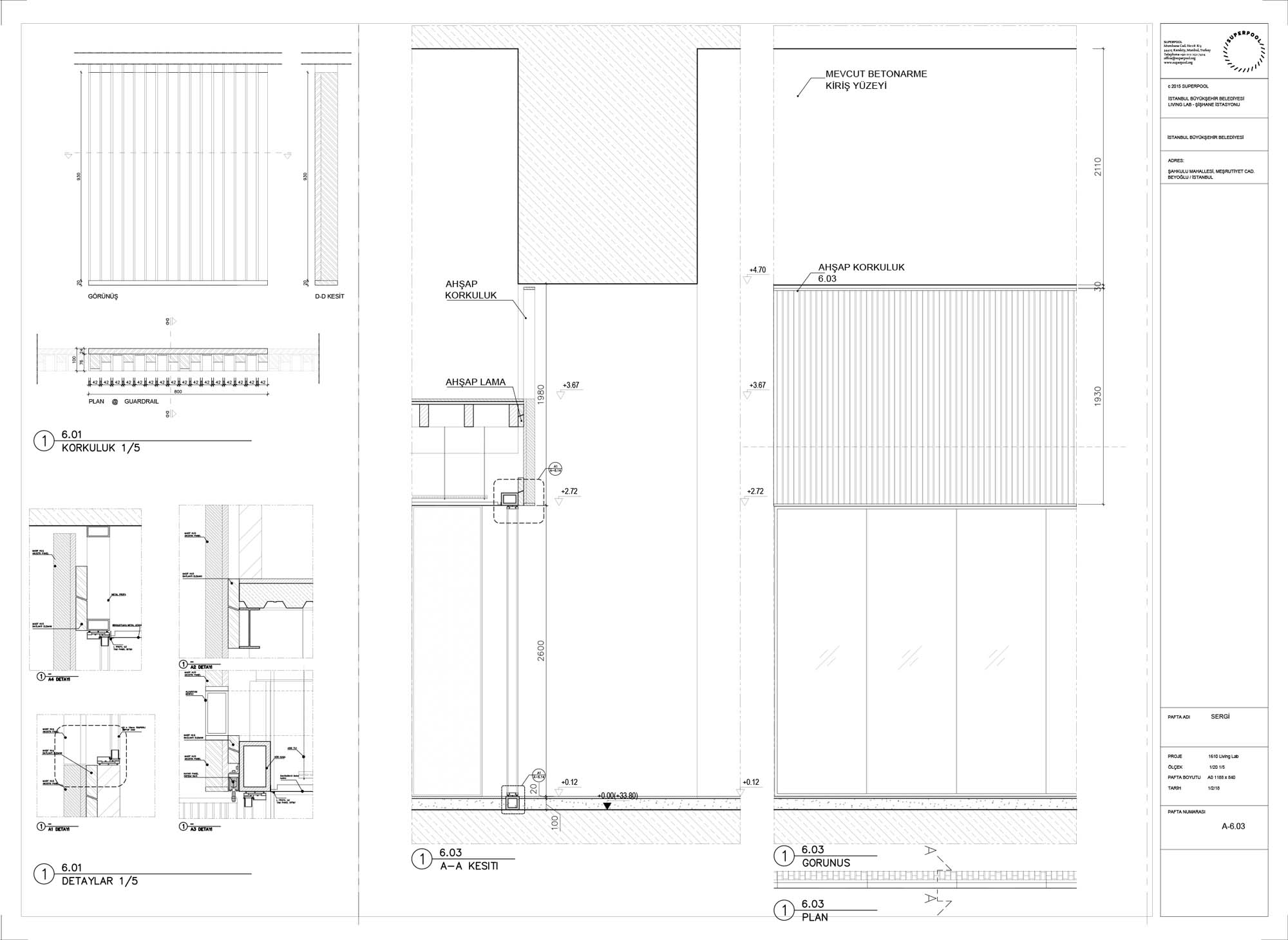
Proje Ofisi: Superpool
Proje Tipi: Ofis, Ar-Ge Binası
Proje Tipi Grubu: Kamu
Tasarım Ekibi: Selva Gürdoğan, Gregers Tang Thomsen, Alican Cömez, Behiyye Yılmaz, Beyza Gürdoğan, Derya İyikul, Eda Bilir, Gökçe Coşkun, Matthias Simon Wechsler, Nicola Iavarone, Sara Rachdan, Zehra Nur Eliaçık
İşveren: İstanbul Büyükşehir Belediyesi AB İlişkileri Müdürlüğü
Danışman: Akım Mühendislik, Enkom Mühendislik, Planlux, Smart Line Engineering
Ana Yüklenici: İSTİNAT İnşaat
Grafik Tasarım: Didem Ateş
Statik Projesi: SMART LINE ENGINEERING, Mehmet Evram
Mekanik Projesi: Akım Mühendislik, Süleyman Akım, Fatma Akım, İsmail Çelik, Mustafa Leblebici
Elektrik Projesi: Enkom Mühendislik, Belgin Pekcan, Berrin Şencan
Fotoğraf: Emre Dörter
Şantiye Yöneticisi: İSTİNAT İnşaat, Selçuk Yapıcıoğlu
Proje Başlangıç Yılı: 2016
Proje Bitiş Yılı: 2018
İnşaat Başlangıç Yılı: 2018
İnşaat Bitiş Yılı: 2018
Arsa Alanı: 760 m²
Toplam İnşaat Alanı: 1,350 m²