26/26
Paylaş
Resmi Orjinal Boyutunda Göster
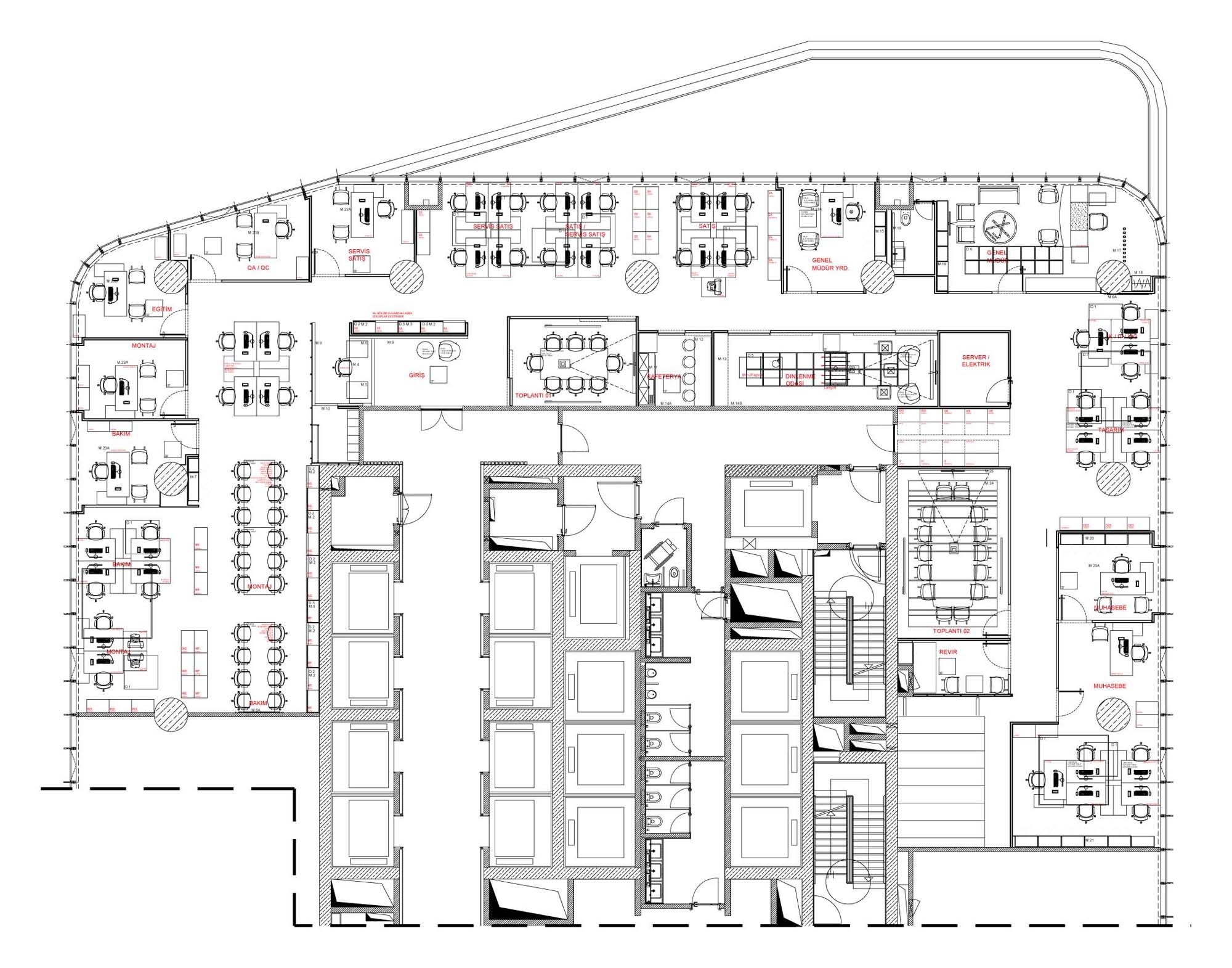
AG Melco Ofis
Proje Yeri: Sarıyer, İstanbul
Proje Ofisi: Udesign Mimarlık
Proje Tipi: Ofis
Proje Tipi Grubu: Ticari
Tasarım Ekibi: Gökçen Hotaman, Umut Uzuner
İşveren: AG Melco Türkiye
Yardımcı: Emre Şahin, Mehmed Zahid Aras, Sinan Sancaktutan
Ana Yüklenici: Udesign Mimarlık
Mekanik Projesi: Çağrı Sistem Çözümleri
Elektrik Projesi: EEM Mühendislik
Tesisat Projesi: Çağrı Sistem Çözümleri
Yangın Tahliye Projesi: Çağrı Sistem Çözümleri
Fotoğraf: Gürkan Akay
Şantiye Yöneticisi: Mehmed Zahid Aras
Proje Başlangıç Yılı: 2017
Proje Bitiş Yılı: 2018
İnşaat Başlangıç Yılı: 2018
İnşaat Bitiş Yılı: 2018
Toplam İnşaat Alanı: 540 m²