31/34
Paylaş
Resmi Orjinal Boyutunda Göster
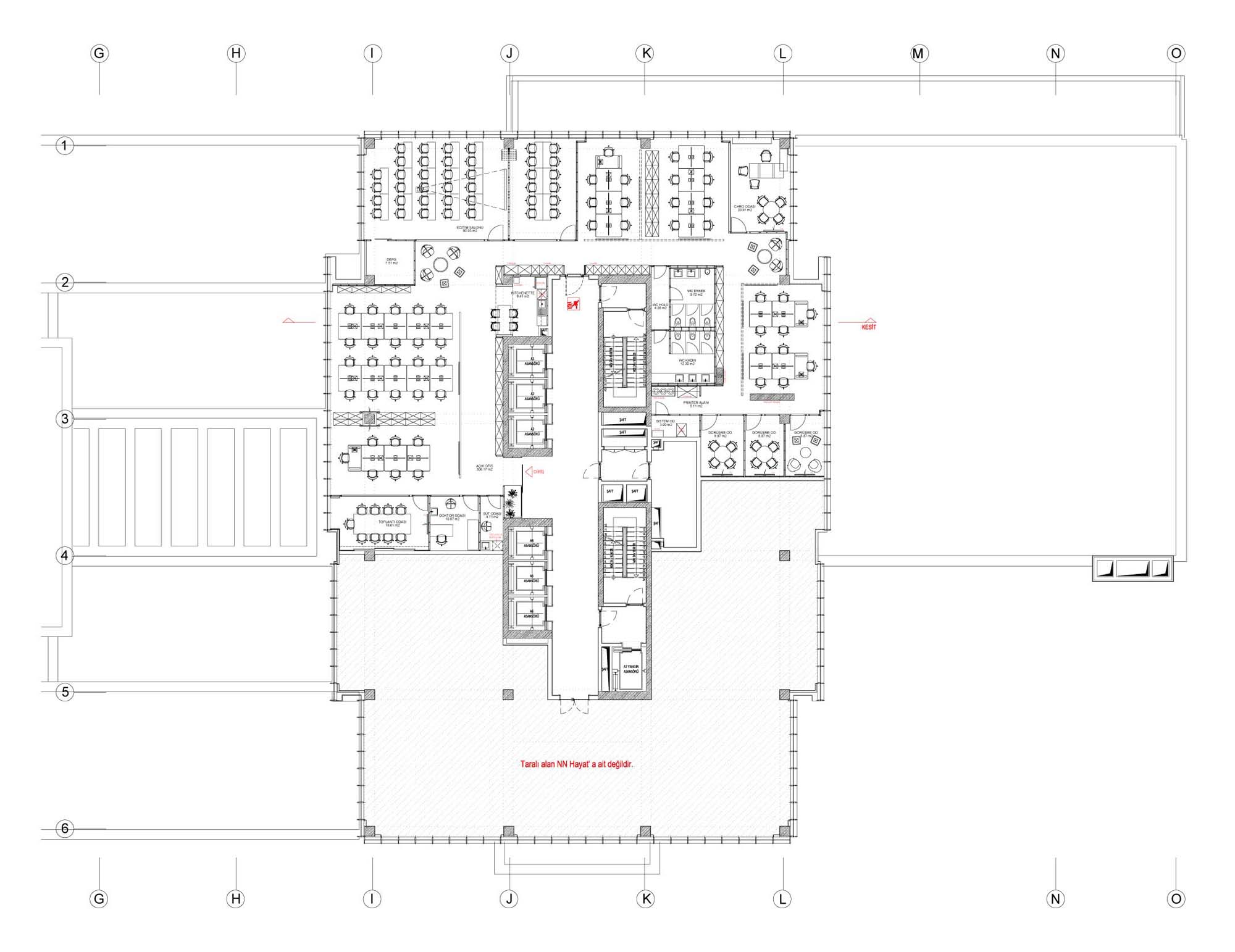
NN Hayat ve Emeklilik Türkiye Merkez Ofisi
Proje Yeri: Sarıyer, İstanbul
Proje Ofisi: Udesign Mimarlık
Proje Tipi: Ofis
Proje Tipi Grubu: Ticari
Tasarım Ekibi: Gökçen Hotaman, Umut Uzuner
İşveren: NN Hayat ve Emeklilik Türkiye
Yardımcı: Utku Arslan, Emre Şahin, Gülşen Bekdaş
Ana Yüklenici: Udesign Mimarlık
Statik Projesi: Mustafa Atam, Açı Çelik
Mekanik Projesi: Çağrı Sistem Çözümleri
Elektrik Projesi: EEM Mühendislik
Tesisat Projesi: Çağrı Sistem Çözümleri
Yangın Tahliye Projesi: Çağrı Sistem Çözümleri
Fotoğraf: Gürkan Akay
Şantiye Yöneticisi: Evren Erim
Proje Başlangıç Yılı: 2018
Proje Bitiş Yılı: 2018
İnşaat Başlangıç Yılı: 2018
İnşaat Bitiş Yılı: 2018
Toplam İnşaat Alanı: 2,500 m²