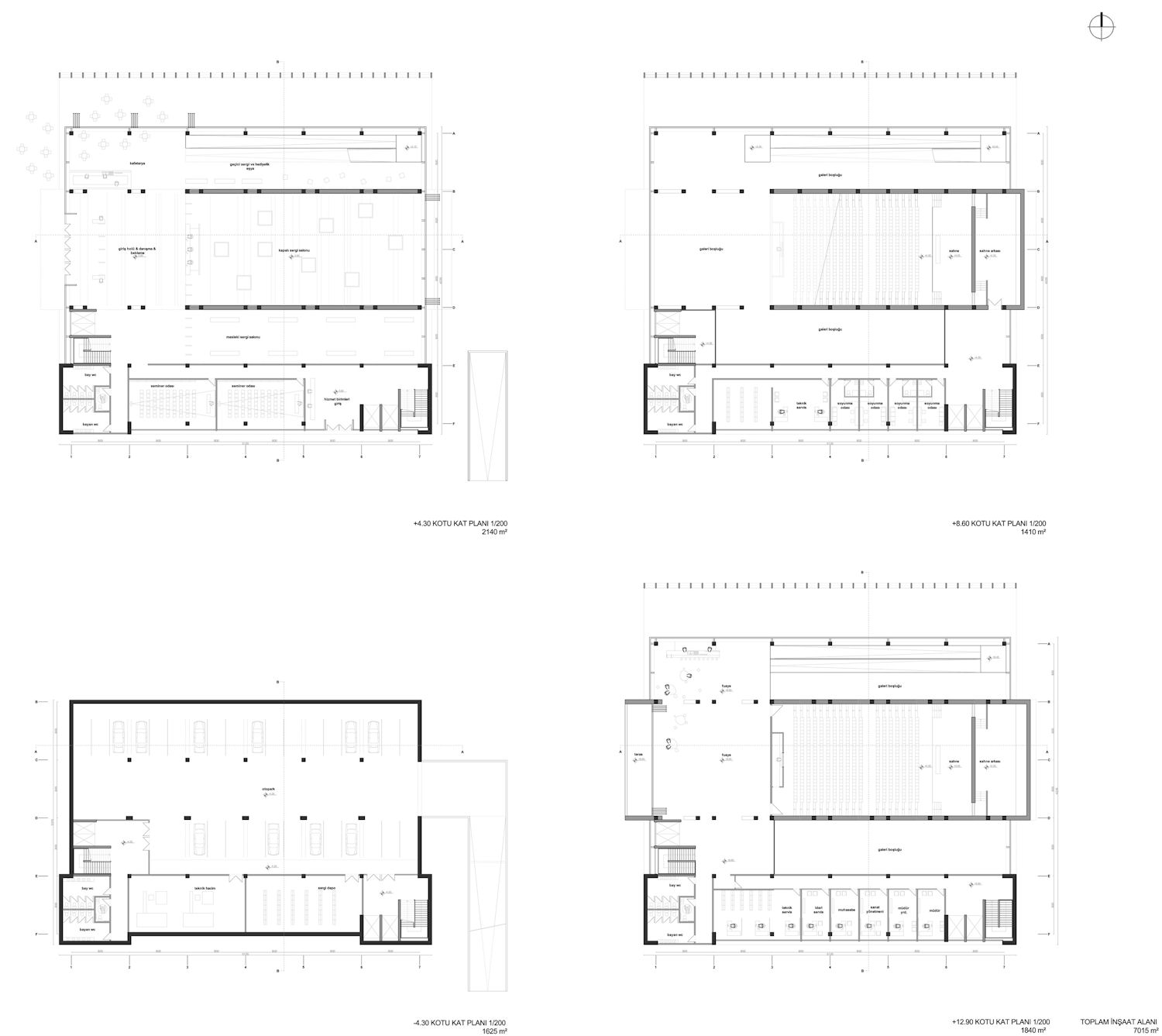
Planlar
11/22
Paylaş
Resmi Orjinal Boyutunda Göster
Ödemiş Yarışması, 3. Mansiyon
Proje Yeri: İzmir
Proje Tipi: Kentsel Tasarım
Proje Tipi Grubu: 3. Mansiyon
Tasarım Ekibi: Barış Ekmekçi, Mehmet Ziya İmren, Münire Sağat, Çiğdem Durukan
Danışman: Ufuk Cesur
Yardımcı: Yakup Koçak