17/17
Paylaş
Resmi Orjinal Boyutunda Göster
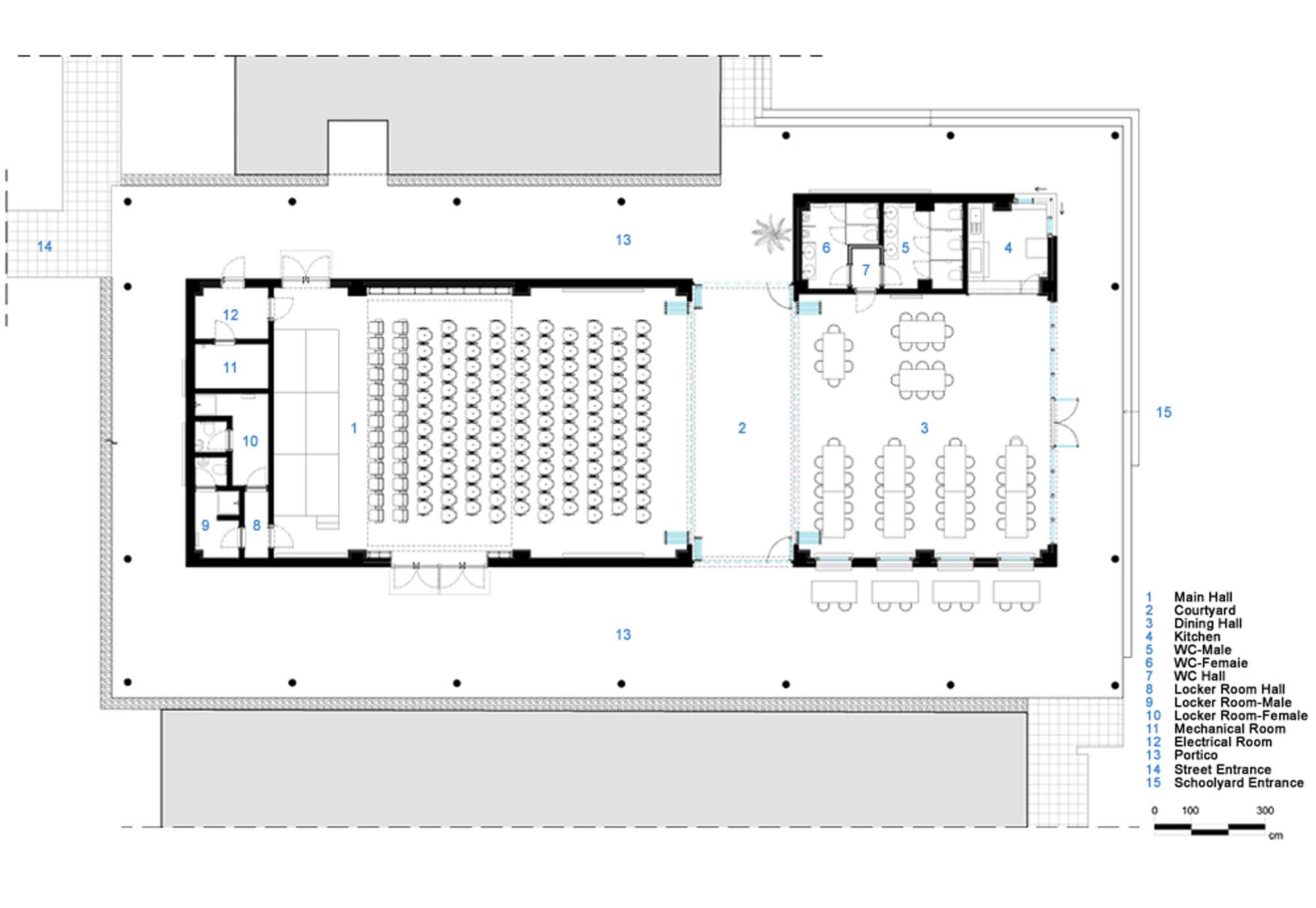
Erzincan Lisesi Aydın Doğan Öğrenci Merkezi
Proje Yeri: Erzincan
Proje Ofisi: CKMY Architects
Proje Tipi: Diğer Eğitim Yapıları
Proje Tipi Grubu: Eğitim
Tasarım Ekibi: Can Kendir, Mert Yılmaz, Berk Öktem, Cansu Dölek
Mimari Proje Ekibi: Can Kendir, Mert Yılmaz, Berk Öktem
İşveren: Aydın Doğan Vakfı
Mekanik Projesi: DWG Mühendislik
Elektrik Projesi: Tasarım Proje
Proje Başlangıç Yılı: 2016
Proje Bitiş Yılı: 2017
İnşaat Başlangıç Yılı: 2017
İnşaat Bitiş Yılı: 2017