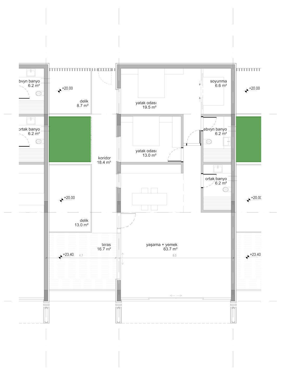
A Blok Alt Kat Planı
19/45
Paylaş
Resmi Orjinal Boyutunda Göster
Bodrum Sıra Evler (Reef Loft)
Fotoğraflar: Boran Ekinci
Proje Yeri: Bodrum
Proje Ofisi: Boran Ekinci Mimarlık
Proje Tipi: Konut Sitesi / Grubu
Proje Tipi Grubu: Konut
Tasarım Ekibi: Deniz Okten, Roysi Ojalvo, Recep Semizoğlu, Evren Öztürk
İşveren: Denpa Yapı
Ana Yüklenici: Denpa Yapı
Statik Projesi: Ali Rıza Uysal
Mekanik Projesi: Orkun Mekanik
Elektrik Projesi: CE Mühendislik
Proje Başlangıç Yılı: Aralık 2010
Proje Bitiş Yılı: Şubat 2011
İnşaat Başlangıç Yılı: Kasım 2010
İnşaat Bitiş Yılı: Eylül 2011
Arsa Alanı: 2.487 m2
Toplam İnşaat Alanı: 3.800 m2