5/27
Paylaş
Resmi Orjinal Boyutunda Göster
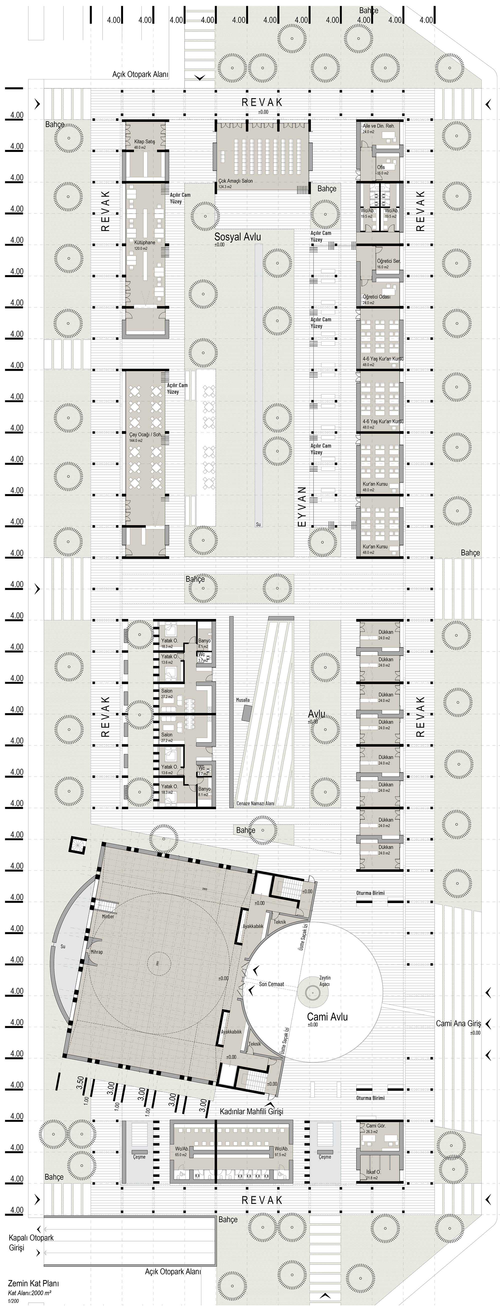
Mansiyon (2. Kategori), Cami Tasarımı Fikir Yarışması
Proje Yeri: Mardin
Proje Ofisi: OfficePAN Mimarlık
Proje Tipi: Cami / Mescit
Proje Tipi Grubu: Mansiyon
Tasarım Ekibi: Cihan Sevindik, Senem Müştak
Yardımcı: Ezgi Atalayın, Fatıma Sak, Cansu Kılınç