10/20
Paylaş
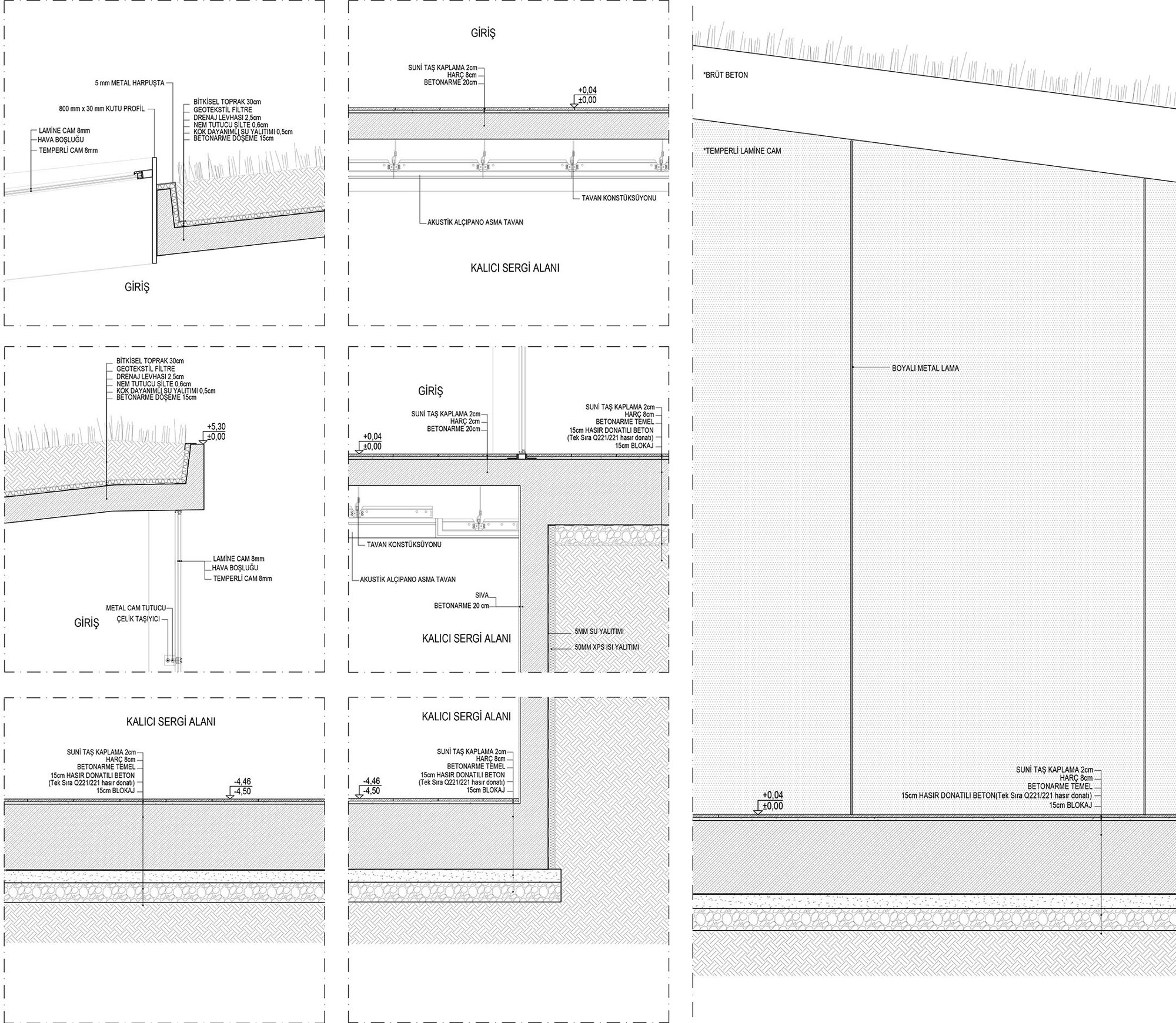
Resmi Orjinal Boyutunda Göster
Katılımcı (Archist), Kore Savaşı Anma Alanı ve Ziyaretçi Merkezi Mimari Proje Yarışması
Proje Yeri: Kırklareli
Proje Ofisi: Archist Mimarlık
Proje Tipi: Anıt / Simge Yapı, Sergi Mekanı / Galeri, Peyzaj
Proje Tipi Grubu: Katılımcı
Tasarım Ekibi: Ceyhan Gönen, Cenk Aykut, İrem Tıkız, Ece Naz Uyan, Dilara Tuncer
Yardımcı: Cemre Akman