36/38
Paylaş
Resmi Orjinal Boyutunda Göster
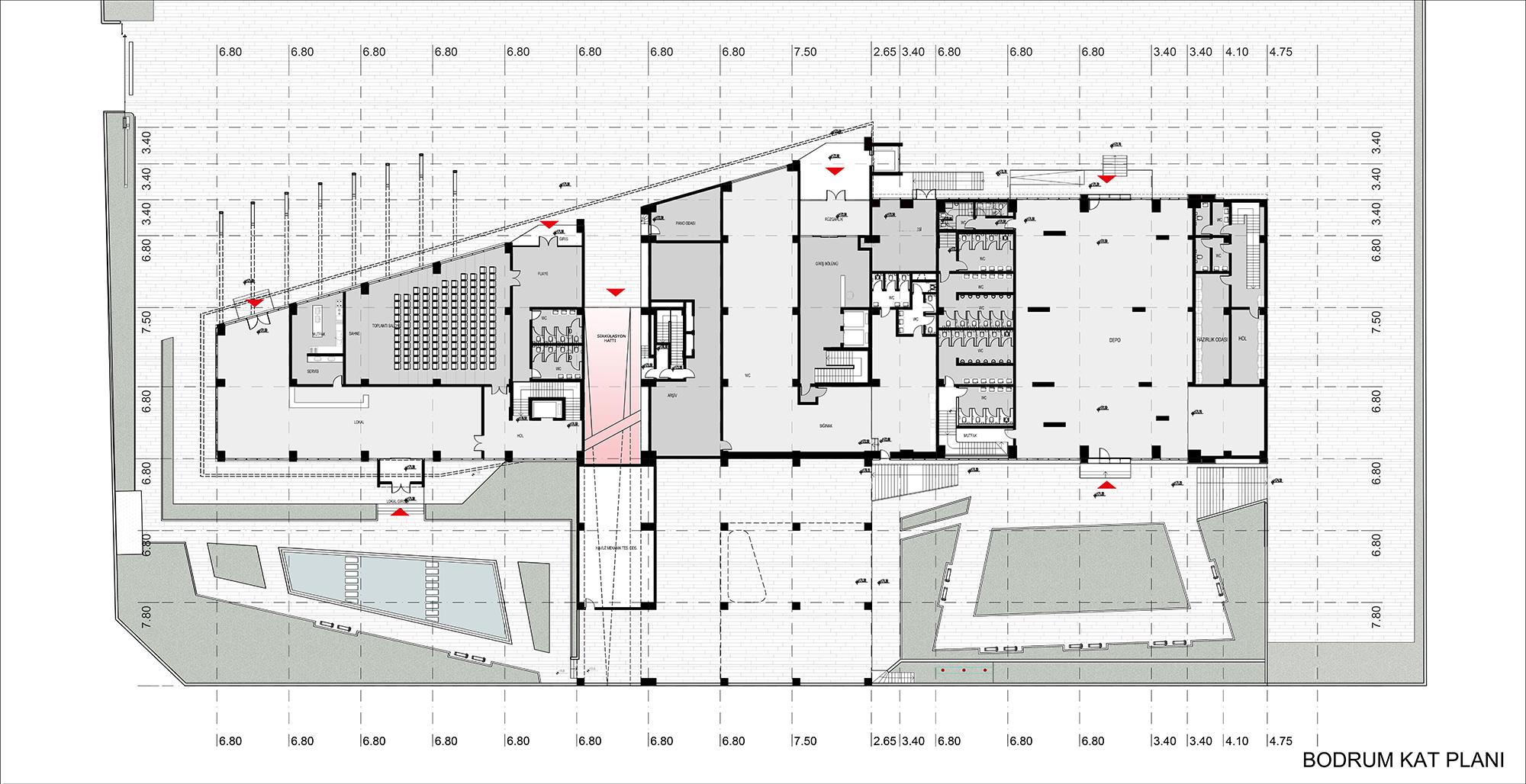
ÇORLU TİCARET VE SANAYİ ODASI
Proje Yeri: Çorlu, Tekirdağ
Proje Ofisi: Megaron Mimarlık
Proje Tipi: Ofis
Proje Tipi Grubu: Kamu
Tasarım Ekibi: Harun Çalışkan, Banu Çalışkan, Cemile Yılmaz, Süleyman Türk, Ezgi İyidoğan, Tuğçe Türe
İşveren: Çorlu Ticaret ve Sanayi Odası
Ana Yüklenici: Özerler Taahhüt İnşaat Ticaret
Proje Başlangıç Yılı: 2013
Proje Bitiş Yılı: 2013
İnşaat Başlangıç Yılı: 2014
İnşaat Bitiş Yılı: 2016
Arsa Alanı: 17,194 m2
Toplam İnşaat Alanı: 8,972 m2