26/31
Paylaş
Resmi Orjinal Boyutunda Göster
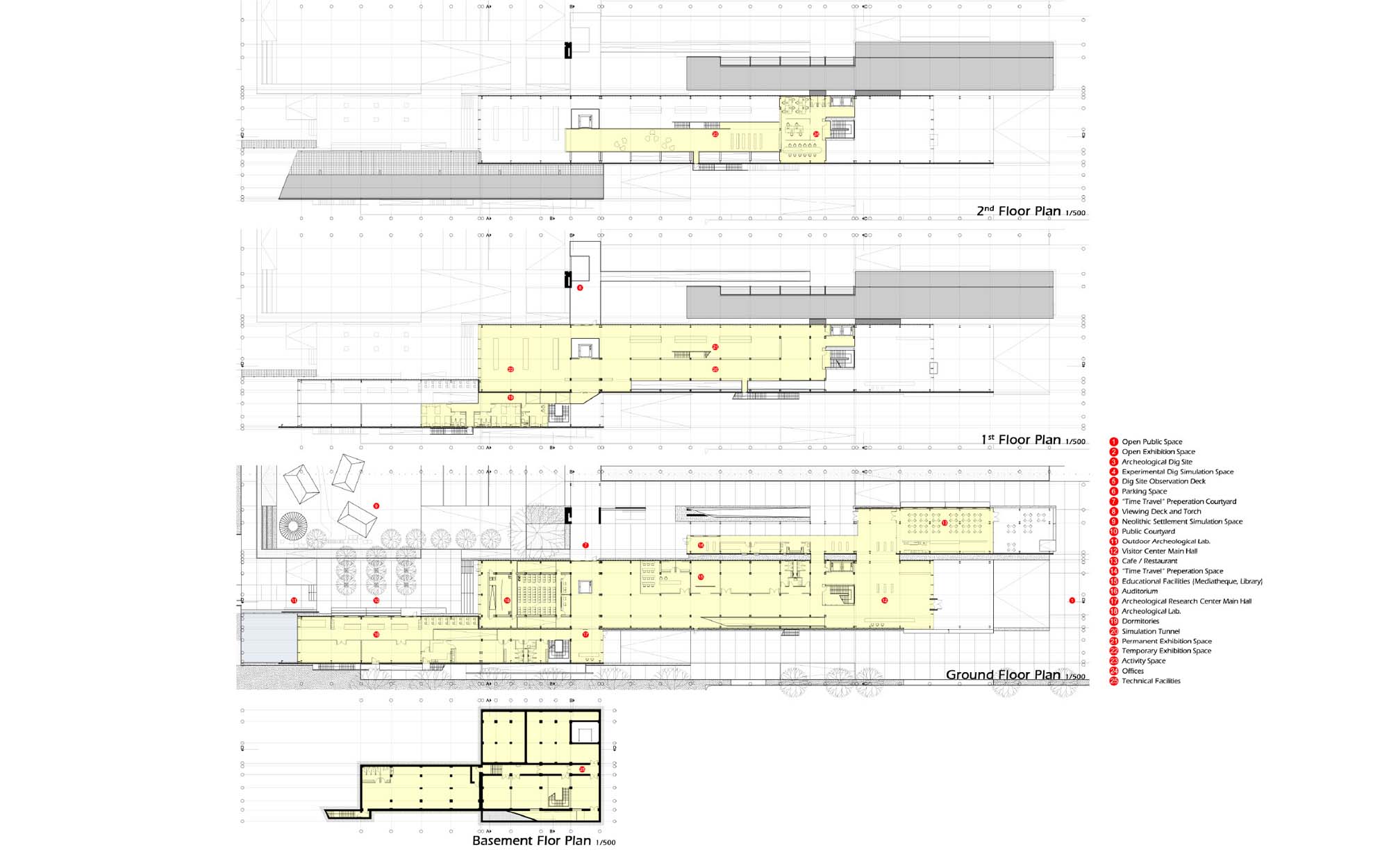
Yeşilova Höyüğü Ziyaretçi Merkezi
Project Location: Bornova, İzmir
Project Office: Studio Evren Başbuğ, SCRA Mimarlık
Project Type: Cultural Center, Museum, Exhibition Hall / Gallery
Proje Tipi Grubu: Kültür
Tasarım Ekibi: Evren Başbuğ, Umut Başbuğ, Seden Cinasal Avcı, Ramazan Avcı
Employer: Bornova Belediyesi
Consultant: ​İyi Şeyler Yayıncılık Yapım
Yardımcı: Hüseyin Komşuoğlu, Tuba Tuncalı, Dilşad Kurtoğlu, Can Özcan, Müğe Bilgi Başbuğ, Özcan Kaygısız, Mesut Dural, Gamze Kahya, Suzan Bahtiyar
Ana Yüklenici: ​Petek Aras / Ümsan Ortak Girişimi
Peyzaj Mimarlığı: Ebru Bingöl
Projcet Manager: Evren Başbuğ, Umut Başbuğ, Seden Cinasal Avcı, Ramazan Avcı
Concept Design: Evren Başbuğ
Lighting Project: Elif Ayalp, Korhan Şişman, Planlux Aydınlatma Tasarımı
Structural Project: ​Atilla Eser Mühendislik, Cemal Çoşak, Konkan Mühendislik, Mahmut Atilla Eser , Methal Mühendislik, Mustafa Şahin, Yüksel Konkan
Mechanical Project: Bülent Örün, Egetek Mühendislik, Hulusi Satoğlu , Necdet Tunalı, Önder Demirdöven , ​Proje Isı Mühendislik
Electrical Project: Levent Ünal , Mustafa Boz
Photography: Cemal Emden, Studio Evren Başbuğ Arşivi, Zafer Derin Arşivi, Zeren + Mehmet Yasa Photography
Project Start Date: 2010
Project End Date: 2011
Construction Start Date: 2012
Construction End Date: 2014
Building Plot Area: 18,080 m²
Total Construction Area: ​5.120 m²