33/36
Paylaş
Resmi Orjinal Boyutunda Göster
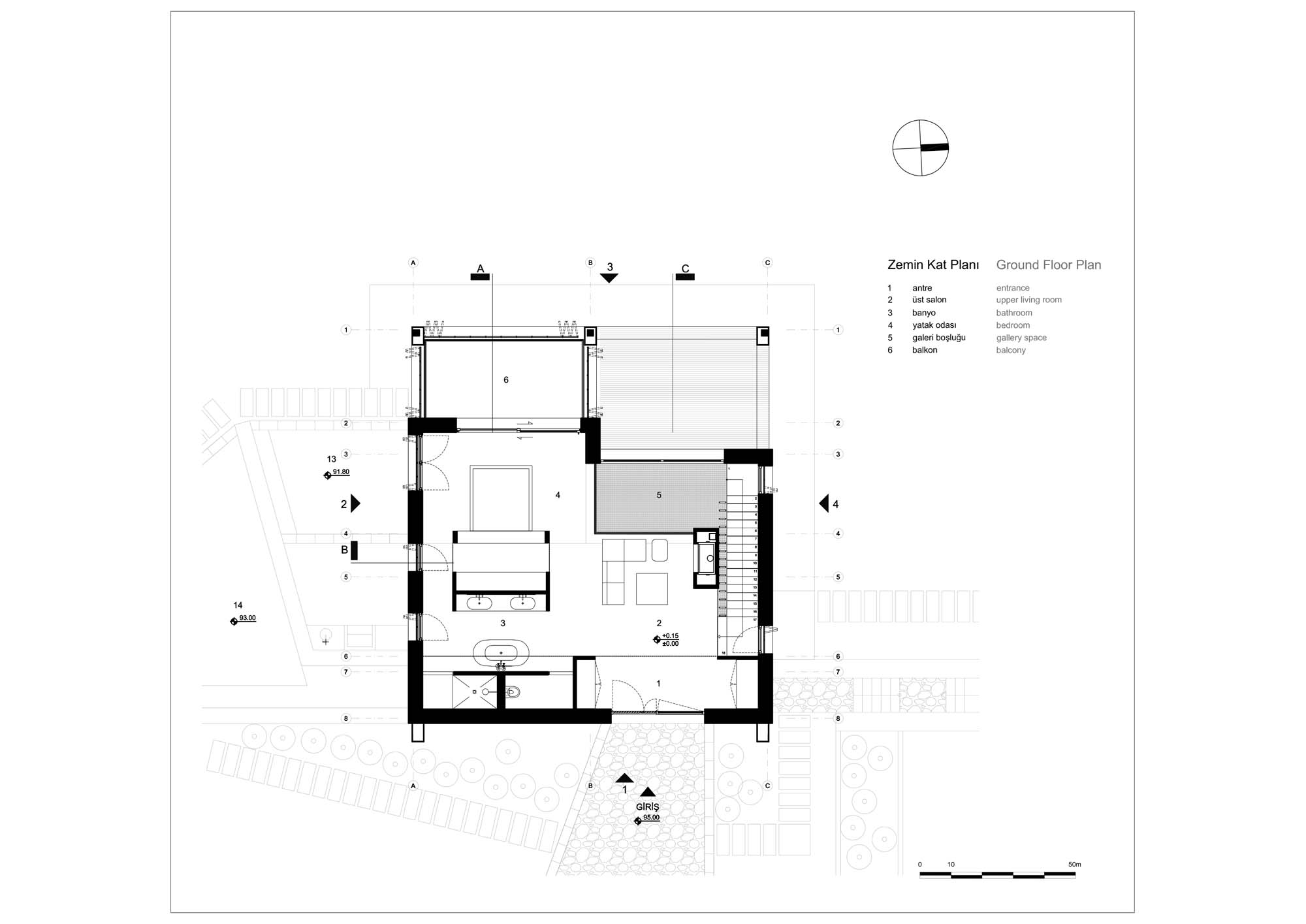
Seciloğlu Evi
Proje Yeri: Muğla
Proje Ofisi: Mehtap Kocaman Mimarlık
Proje Tipi: Tek Ev / Villa
Proje Tipi Grubu: Konut
Tasarım Ekibi: Mehtap Kocaman
İşveren: Seval Seciloğlu, Suha Seciloğlu
Ana Yüklenici: İlyas Ebren
Peyzaj Mimarlığı: Türkmen Çiçekçilik
Statik Projesi: İlyas Ebren
Mekanik Projesi: İlyas Ebren
Elektrik Projesi: İlyas Ebren
Tesisat Projesi: İlyas Ebren
Çelik Projesi: İlyas Ebren
Fotoğraf: Arne Hendrik Uebel
Şantiye Yöneticisi: İlyas Ebren
Proje Başlangıç Yılı: 2017
Proje Bitiş Yılı: 2019
İnşaat Başlangıç Yılı: 2018
İnşaat Bitiş Yılı: 2019
Arsa Alanı: 5,000 m2
Toplam İnşaat Alanı: 340 m²